心斎橋 店舗 1階-No.44163
心斎橋 店舗 基本情報
| 種別 | 店舗(物件番号:44163) |
|---|---|
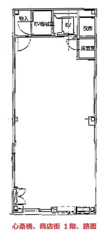
| 物件名 | 心斎橋 店舗
心斎橋筋、1階路面店! |
| 住所 | 大阪市中央区南船場3 |
| 所在階 | 1階部分路面号室 |
| 契約面積 | 24.8 坪・ 81.99 ㎡ |
| 賃料 | お電話・メールにてお問合下さい。 |
| 共益費 | お電話・メールにてお問合下さい。 |
| 月額合計 | お電話・メールにてお問合下さい。 |
| 保証金 | お電話・メールにてお問合下さい。 |
| 最寄駅 |
御堂筋線 『
心斎橋 』
2 分
長堀鶴見緑地線 『 心斎橋 』 2 分 |
| 構造 | 鉄骨造 4階建 |
| 築年数 | / |
| 設備
|
|
営業マンの一言 北心斎橋筋商店街に面した1階路面店舗です。人通りは抜群です。■物販向き |
|

※取引態様:仲介
※上記、金額は募集条件です。 条件交渉など、詳細についてはお問合せ下さい。
※広告作成中に契約済みの場合はご容赦下さい。
※図面等現況が相違する場合は現況優先にてご容赦下さい。
心斎橋 店舗の所在地周辺
物件を再検索する
心斎橋 店舗 近隣のよく似た坪数の貸事務所
-
TAG北心斎橋ビル
大阪市中央区博労町3
御堂筋線「心斎橋」徒歩4分
24.54坪 -
心斎橋クラシックビル
大阪市中央区心斎橋筋1
御堂筋線「心斎橋」徒歩1分
21.4坪 -
小大丸ビル
大阪市中央区心斎橋筋2
御堂筋線「心斎橋」徒歩4分
24.25坪 -
心斎橋西ビル
大阪市中央区西心斎橋1
御堂筋線「心斎橋」徒歩1分
23.61坪 -
サンメゾン心斎橋セレブリテ
大阪市中央区西心斎橋1
御堂筋線「心斎橋」徒歩2分
22.45坪 -
SURE西心斎橋ビル
大阪市中央区西心斎橋1
御堂筋線「心斎橋」徒歩1分
21.64坪 -
サンダー心斎橋ビル
大阪市中央区西心斎橋1
御堂筋線「心斎橋」徒歩1分
20.87坪 -
おおきに心斎橋LANDMARKビル
大阪市中央区西心斎橋2
御堂筋線「心斎橋」徒歩5分
21.19坪 -
心斎橋1921
大阪市中央区東心斎橋1
御堂筋線「心斎橋」徒歩5分
23.45坪 -
日本ジェムセンタービル
大阪市中央区南船場3
御堂筋線「心斎橋」徒歩5分
20.35坪







丹羽 美智子












