心斎橋 店舗・事務所 5階-No.44283
中阪 浩之ナカサカ ヒロユキ
当該ビルの豆知識
「心斎橋エルナ岩崎ビル」は、大阪市中央区東心斎橋1丁目にございます、賃貸テナントビル。
大阪ミナミの中心地心斎橋・長堀通りに面した9階建て。
地下鉄四ツ橋駅から長堀橋駅までをつなぐ、地下ショッピングモール“クリスタ長堀”の南8番出入口が目の前の好立地。
ワンフロア面積が約45坪と、中規模ビルでありながら、落ち着いたブラウンカラーで視認性抜群です。
エステ・ヘアー・ネイルサロンや各種スクール等、“女性の美”に関連する業種を大歓迎です。
大阪市営地下鉄・御堂筋線・長堀鶴見緑地線の「心斎橋駅」徒歩2分の交通至便。
四つ橋線・堺筋線の利用も可能です。
心斎橋 店舗・事務所 基本情報
| 種別 | 店舗・事務所(物件番号:44283) |
|---|---|
| 物件名 | 心斎橋 店舗・事務所
女性の美に関連する業種・大歓迎 |
| 住所 | 大阪市中央区東心斎橋1 |
| 所在階 | 5階部分N号室 |
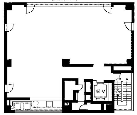
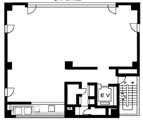
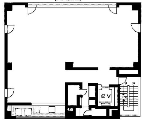
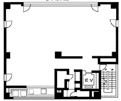
| 契約面積 | 29.89 坪・ 98.81 ㎡ |
| 賃料 | お電話・メールにてお問合下さい。 |
| 共益費 | お電話・メールにてお問合下さい。 |
| 月額合計 | お電話・メールにてお問合下さい。 |
| 保証金 | お電話・メールにてお問合下さい。 |
| 最寄駅 |
御堂筋線 『
心斎橋 』
2 分
堺筋線 『 長堀橋 』 3 分 四ツ橋線 『 四ツ橋 』 6 分 |
| 構造 | 鉄骨鉄筋コンクリート造 9階建 |
| 築年数 | 1983/10 【新耐震基準】 |
| 設備
|
|
| エレベーター | 1基 |
営業マンの一言 長堀通り沿いのテナントビル大阪ミナミ心斎橋の賃貸テナントビル ■エステ・美容室・クリニック向き■各種教室向き |
|

※取引態様:仲介
※上記、金額は募集条件です。 条件交渉など、詳細についてはお問合せ下さい。
※広告作成中に契約済みの場合はご容赦下さい。
※図面等現況が相違する場合は現況優先にてご容赦下さい。
心斎橋 店舗・事務所の所在地周辺
物件を再検索する
心斎橋 店舗・事務所 関連物件
心斎橋 店舗・事務所 近隣のよく似た坪数の貸事務所
-
KUS博労町ビル
大阪市中央区博労町4
御堂筋線「心斎橋」徒歩3分
26.3坪 -
永恒ビル
大阪市中央区心斎橋筋1
御堂筋線「心斎橋」徒歩1分
26.85坪 -
心斎橋西ビル
大阪市中央区西心斎橋1
御堂筋線「心斎橋」徒歩1分
28.67坪 -
御堂筋ミナミビル
大阪市中央区西心斎橋2
御堂筋線「心斎橋」徒歩5分
26.06坪 -
プライムスクエア心斎橋ビル
大阪市中央区心斎橋筋2
御堂筋線「心斎橋」徒歩3分
27.02坪 -
清水町会館
大阪市中央区東心斎橋1
御堂筋線「心斎橋」徒歩2分
28.61坪 -
科野ビル
大阪市中央区南船場3
御堂筋線「心斎橋」徒歩3分
27.66坪 -
NLC心斎橋ビル
大阪市中央区南船場3
御堂筋線「心斎橋」徒歩4分
28.67坪 -
三栄ムアビル
大阪市中央区南船場3
御堂筋線「心斎橋」徒歩3分
26.04坪 -
ACN心斎橋ヒルズ
大阪市中央区南船場3
御堂筋線「心斎橋」徒歩3分
28.0坪


















