東梅田 店舗 B1階-No.48230
堀中 忠久ホリナカ タダヒサ
当該ビルの豆知識
「国道ビル~ラ・オカシオン~」は、大阪市北区曾根崎2丁目にございます、賃貸テナントビルです。
2014年2月にデザイナーズ・リノベーション完成!
美術館をイメージしたデザインで、レーザービームやグラフィックデザインなど遊び心満載のビル。
下層階がショップなどテナント向けフロア、上層階がオフィス仕様となっております。
貸室は、約7坪のスモールオフィスから50坪ほどの広さまで、フレキシブルな対応が可能です。
エレベーター2基、貸し会議室やコミュニティルーム、また喫煙室も設けられており、充実の設備が整っております。
多くのリノベーションを手掛けた実績から、テナント様の使い勝手の良さ・心地良さなど、多種多様なニーズに応えた企画・設計となっておりますので、ビジネス拠点として快適な空間が約束されております。
立地は、梅新東交差点の北西角地で視認性も抜群。
JR東西線の「北新地駅」より徒歩2分、地下鉄谷町線の「東梅田駅」より徒歩4分、御堂筋線など各「梅田駅」からは約7分の交通アクセスで、新事業の立ち上げは“梅田”という方には、おすすめの物件です。
東梅田 店舗 基本情報
| 種別 | 店舗(物件番号:48230) |
|---|---|
| 物件名 | 東梅田 店舗
南西に入口階段あり。 |
| 住所 | 大阪市北区曾根崎2 |
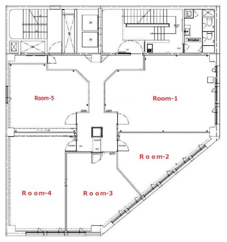
| 所在階 | B1階部分号室 その他、貸室 |
| 契約面積 | 68.61 坪・ 226.81 ㎡ |
| 賃料 | 総額
1,209,472 円 (税抜)・坪単価
17,628 円/坪 (税抜) 総額 1,330,419 円(税含む) |
| 共益費 | 総額 226,776 円 (税抜)・坪単価 3,305 円/坪 (税抜) 総額 249,454 円 (税含む) |
| 月額合計 | 総額 1,436,248 円(税抜)・坪単価 20,934 円(税抜) 総額 1,579,873 円 (税含む) |
| 敷金 | 2,199,040 円 |
| 礼金 | 2ヶ月 |
| 費用備考 | 賃貸保証加入要 |
| 最寄駅 |
谷町線 『
東梅田 』
4 分
御堂筋線 『 梅田 』 7 分 東西線 『 北新地 』 2 分 |
| 構造 | 鉄骨鉄筋コンクリート造 9階建 /地下 3 階 |
| 築年数 | 1964/1 (リニューアル: 2014/02 ) |
| 設備
|
|
| エレベーター | 2基 |
営業マンの一言 大阪メトロ谷町線 東梅田駅徒歩4分 JR線・阪急線・御堂筋線徒歩利用可能 国道1号線に面すデザイナーズビル。2014年リノベーション完成。貸し会議室・コミュニティールームなど共用設備も充実。視認性も抜群です。■エステ・美容室・クリニック向き■飲食店舗向き■物販向き |
|
| 備考 | 貸し会議室/リフレッシュルーム |

※取引態様:仲介
※上記、金額は募集条件です。 条件交渉など、詳細についてはお問合せ下さい。
※広告作成中に契約済みの場合はご容赦下さい。
※図面等現況が相違する場合は現況優先にてご容赦下さい。
東梅田 店舗の所在地周辺
同じビルの その他の部屋情報
物件を再検索する
東梅田 店舗 近隣のよく似た坪数の貸事務所
-
大阪富国生命ビル
大阪市北区小松原町
谷町線「東梅田」徒歩6分
69.28坪 -
エム ヴォランテ ウメダ(M.VOLANTE UMEDA)
大阪市北区曾根崎2
谷町線「東梅田」徒歩2分
61.81坪 -
TATSUMI梅ヶ枝ビル
大阪市北区西天満6
谷町線「東梅田」徒歩7分
66.0坪



















