オリックス久太郎町ビル(ORIX久太郎町ビル) 6階-No.49763
中阪 浩之ナカサカ ヒロユキ
オリックス久太郎町ビル(ORIX久太郎町ビル)の豆知識
「オリックス久太郎町ビル(ORIX久太郎町)」は、大阪市中央区久太郎町3丁目にございます賃貸事務所。
商都・大阪の中心地・船場エリアに位置する、スタイリッシュで美しい外観の10階建てオフィスビル。
屋上には緑化庭園、キーレス血流認識装置のセキュリティ、24時間対応の温湿度管理に、空気清浄と、ハイスペックな最新ビル設備で、入居者様の快適なオフィスワークをサポートしています。
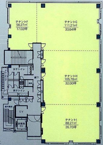
貸室基準階面積は約110坪。
約30坪の広さから対応が可能なフレキシブルな賃貸オフィスです。
大阪市営地下鉄御堂筋線・中央線の「本町駅」より徒歩3分。
堺筋線の「堺筋本町駅」より徒歩4分と、交通アクセスも抜群の大阪ビジネス拠点。
心斎橋商店街や船場センタービル街も近く、活気あるロケーションです。
オリックス久太郎町ビル(ORIX久太郎町ビル) 基本情報
| 種別 | 貸事務所(物件番号:49763) |
|---|---|
| 物件名 | オリックス久太郎町ビル(ORIX久太郎町ビル) |
| 住所 | 大阪市中央区久太郎町3-3-9 |
| 所在階 | 6階部分号室 その他、貸室 |
| 契約面積 | 44.2 坪・ 146.12 ㎡ |
| 賃料 | お電話・メールにてお問合下さい。 |
| 共益費 | お電話・メールにてお問合下さい。 |
| 月額合計 | お電話・メールにてお問合下さい。 |
| 敷金 | お電話・メールにてお問合下さい。 |
| 最寄駅 |
御堂筋線 『
本町 』
3 分
中央線 『 本町 』 3 分 堺筋線 『 堺筋本町 』 4 分 |
| 構造 | 鉄筋コンクリート造 10階建 /地下 1 階 |
| 築年数 | 2008/1 【新耐震基準】 |
| 設備
|
|
| エレベーター | 3基 |
営業マンの一言 大阪本町のハイスペックな賃貸事務所ビルです。2008年竣工、スタイリッシュで大変綺麗なハイグレード賃貸オフィスビル |
|
| 備考 | オートロック |

※取引態様:仲介
※上記、金額は募集条件です。 条件交渉など、詳細についてはお問合せ下さい。
※広告作成中に契約済みの場合はご容赦下さい。
※図面等現況が相違する場合は現況優先にてご容赦下さい。
オリックス久太郎町ビル(ORIX久太郎町ビル)の所在地周辺
オリックス久太郎町ビル(ORIX久太郎町ビル) その他の部屋情報
入居テナント
物件を再検索する
オリックス久太郎町ビル(ORIX久太郎町ビル) 関連物件
オリックス久太郎町ビル(ORIX久太郎町ビル) 近隣のよく似た坪数の貸事務所
-
本町サンケイビル
大阪市中央区本町4
御堂筋線「本町」徒歩2分
45.23坪 -
京阪神安土町ビル
大阪市中央区安土町3
御堂筋線「本町」徒歩1分
47.68坪 -
淡路町ダイビル
大阪市中央区淡路町3
御堂筋線「本町」徒歩5分
43.5坪 -
グリーンビル
大阪市中央区瓦町3
御堂筋線「本町」徒歩4分
42.99坪 -
おおきに御堂筋瓦町ビル
大阪市中央区瓦町4
御堂筋線「本町」徒歩3分
42.14坪 -
南星瓦町ビル
大阪市中央区瓦町4
御堂筋線「本町」徒歩4分
43.14坪 -
リバティ御堂筋本町
大阪市中央区久太郎町3
御堂筋線「本町」徒歩1分
45.0坪 -
ルセオン博労町
大阪市中央区博労町3
御堂筋線「本町」徒歩7分
40.34坪 -
L.Biz大阪本町
大阪市中央区博労町4
御堂筋線「本町」徒歩6分
43.46坪 -
THE VILLAGE OSAKA
大阪市中央区本町1
御堂筋線「本町」徒歩9分
40.74坪



































