江坂 貸店舗 4階-No.50016
同じビルの その他の貸室情報
江坂 貸店舗 基本情報
| 種別 | 貸店舗(物件番号:50016) |
|---|---|
| 物件名 | 江坂 貸店舗 |
| 住所 | 吹田市江の木町 |
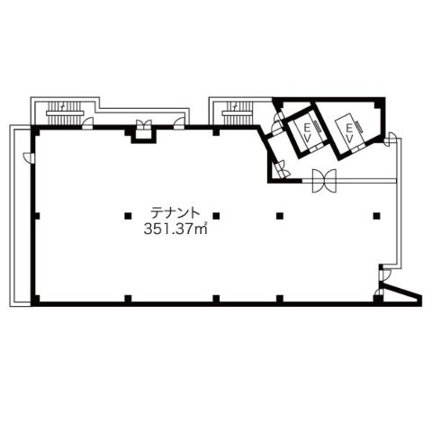
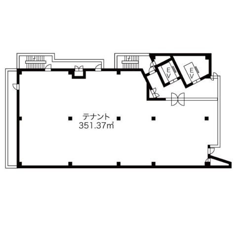
| 所在階 | 4階部分号室 |
| 契約面積 | 106.29 坪・ 351.38 ㎡ |
| 最寄駅 | 御堂筋線 『 江坂 』 1 分 |
| 構造 | 鉄骨造 8階建 /地下 1 階 |
| 築年数 | 2008/3 【新耐震基準】 |
| 設備
|
|
| エレベーター | 2基 |
営業マンの一言 ■エステ・美容室・クリニック向き■物販向き■各種教室向き |
|

※取引態様:仲介
※上記、金額は募集条件です。 条件交渉など、詳細についてはお問合せ下さい。
※広告作成中に契約済みの場合はご容赦下さい。
※図面等現況が相違する場合は現況優先にてご容赦下さい。
江坂 貸店舗の所在地周辺
ストリートビューを表示▼
物件を再検索する
江坂 貸店舗 関連物件
江坂 貸店舗 近隣のよく似た坪数の貸事務所
-
江坂NKビル
吹田市江坂町1
御堂筋線「江坂」徒歩3分
123.25坪 -
江坂アパートメント弐番館
吹田市江坂町1
御堂筋線「江坂」徒歩2分
101.0坪 -
白川ビル
吹田市垂水町3
御堂筋線「江坂」徒歩7分
140.3坪













丹羽 美智子






