本町サミットビル 7階-No.51845
中阪 浩之ナカサカ ヒロユキ
本町サミットビルの豆知識
本町サミットビルの最寄駅は、大阪メトロ御堂筋線の「本町駅」ですが四ツ橋線・中央線の「本町駅」はもちろんのこと御堂筋線の「心斎橋駅」からも徒歩6分の好立地。駐車場も併設しておりますので、営業で車を使用される企業様にもご納得いただけます。
ゆったりとしたエントランス、エレベーターが2基、室内は明るいオフィス空間を実現するワイドビューサッシを採用しており、管理人常駐もしたアクセスだけでなく管理・設備面も充実した賃貸事務所ビルです。
大阪ビジネスエリアである本町に立地し、少し南にいくと若い方に人気のショップが多く並ぶ賑やかな南船場です。一方、周辺には南御堂さんや坐摩神社さんもあり、緑も多く落ち着いた街並みです。
坐摩で“いかすり”と読むそうです。通称は“ざまじんじゃ”で良いそうですが・・・。
居住地を守る住居守護の神さま・旅行安全の神さま・安産の神さまとして信仰されており、入り口には大小3つ鳥居が横に組み合わさった「三ツ鳥居」という珍しい鳥居があります。確かに真ん中に大きめの鳥居がひとつ、その両脇にやや小さめの2つの鳥居が組み合わさっています。6月には紫陽花が見ごろを迎え、7月には陶器祭が催されますので、お近くにお寄りの際は是非一度のぞいてみて下さい。
本町サミットビル 基本情報
| 種別 | 事務所(物件番号:51845) |
|---|---|
| 物件名 | 本町サミットビル |
| 住所 | 大阪市中央区北久宝寺町4-3-5 |
| 所在階 | 7階部分号室 |
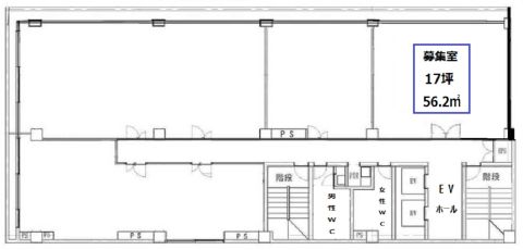
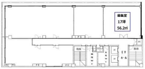
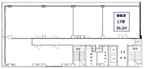
| 契約面積 | 17.0 坪・ 56.20 ㎡ |
| 最寄駅 |
御堂筋線 『
本町 』
4 分
四ツ橋線 『 本町 』 5 分 中央線 『 本町 』 3 分 |
| 構造 | 鉄筋コンクリート造 7階建 |
| 築年数 | 1988/2 【新耐震基準】 (リニューアル: 2002年 ) |
| 設備
|
|
| エレベーター | 2基 9人乗 |
営業マンの一言 エレベーター2基、角部屋、最上階、採光両行、使いやすさも良”本町駅、近くの角ビル全室彩光良好!1階に保安室に管理人が在中、安心。設備も充実し、価格も十分に相談します。弊社、専任物件 |
|

※取引態様:仲介
※上記、金額は募集条件です。 条件交渉など、詳細についてはお問合せ下さい。
※広告作成中に契約済みの場合はご容赦下さい。
※図面等現況が相違する場合は現況優先にてご容赦下さい。
本町サミットビルの所在地周辺
入居テナント
物件を再検索する
本町サミットビル 関連物件
本町サミットビル 近隣のよく似た坪数の貸事務所
-
シルバービル(旧、第一シルバービル)
大阪市中央区安土町3
御堂筋線「本町」徒歩2分
20.0坪 -
プログレスビル
大阪市中央区安土町3
御堂筋線「本町」徒歩2分
18.0坪 -
淡路町パークビル
大阪市中央区淡路町2
御堂筋線「本町」徒歩7分
19.0坪 -
トーア紡第2ビル(トーア紡第二ビル)
大阪市中央区淡路町3
御堂筋線「本町」徒歩5分
19.08坪 -
OWL瓦町ビル(アウルカワラマチ)
大阪市中央区瓦町3
御堂筋線「本町」徒歩3分
15.97坪 -
ステーツ本町
大阪市中央区瓦町3
御堂筋線「本町」徒歩3分
18.64坪 -
おおきに御堂筋瓦町ビル
大阪市中央区瓦町4
御堂筋線「本町」徒歩3分
19.65坪 -
おおきにKOKODESU瓦町四丁目
大阪市中央区瓦町4
御堂筋線「本町」徒歩4分
15.83坪 -
瓦町浪速ビル
大阪市中央区瓦町4
御堂筋線「本町」徒歩3分
15.0坪 -
心斎橋クマタカ
大阪市中央区北久宝寺町3
御堂筋線「本町」徒歩4分
18.0坪






























