KDX北浜ビル 10階-No.5245
中阪 浩之ナカサカ ヒロユキ
KDX北浜ビルの豆知識
「KDX北浜ビル」は、大阪市中央区平野町2丁目にございます賃貸事務所。
クラシカルなフロント部分とミラーウォールの対比が見事な、地上10階建て賃貸オフィスビル。
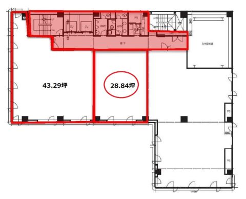
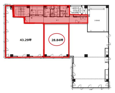
基準階面積は約130坪。
分割対応により、広さ約40~90坪のオフィスバリエーションが可能。
共用部のカーペット交換も完了し、充実したビルスペックで、快適なワークスペースが確保されています。
大阪市営地下鉄堺筋線・京阪本線の「北浜駅」6番出入り口より徒歩3分の交通アクセス。
御堂筋線の「淀屋橋駅」からも徒歩6分の好立地オフィスです。
大阪・ビジネス街の中でも、金融関連の企業が集まる“北浜”。
五代友厚像のある大阪取引所ビルや超高層マンション&テナントビルのザ・北浜タワーなど、特徴的な建造物も多くあり、注目度の高いエリアです。
KDX北浜ビル 基本情報
| 種別 | 貸事務所(物件番号:5245) |
|---|---|
| 物件名 | KDX北浜ビル |
| 住所 | 大阪市中央区平野町2-1-14 |
| 所在階 | 10階部分号室 |
| 契約面積 | 42.64 坪・ 140.96 ㎡ |
| 最寄駅 |
堺筋線 『
北浜 』
3 分
御堂筋線 『 淀屋橋 』 6 分 京阪本線 『 北浜 』 3 分 |
| 構造 | S(鉄骨)造 10階建 |
| 築年数 | 1994/7 【新耐震基準】 (リニューアル: 2008/09 ) |
| 設備
|
|
| エレベーター | 2基 |
営業マンの一言 大阪ビジネス街・北浜の賃貸事務所。堺筋線 北浜駅徒歩3分 京阪線・御堂筋線 淀屋橋駅利用可能 煌びやかな外観が特徴的なインテリジェント賃貸オフィスビルです |
|
| 備考 | オートロック |

※取引態様:仲介
※上記、金額は募集条件です。 条件交渉など、詳細についてはお問合せ下さい。
※広告作成中に契約済みの場合はご容赦下さい。
※図面等現況が相違する場合は現況優先にてご容赦下さい。
KDX北浜ビルの所在地周辺
物件を再検索する
KDX北浜ビル 近隣のよく似た坪数の貸事務所
-
大阪JAビル
大阪市北区西天満1
堺筋線「北浜」徒歩3分
44.88坪 -
88堂島ウイング
大阪市北区西天満3
堺筋線「北浜」徒歩4分
47.16坪 -
北浜小林ビル
大阪市中央区北浜1
堺筋線「北浜」徒歩2分
45.1坪 -
大阪証券取引所ビル
大阪市中央区北浜1
堺筋線「北浜」徒歩1分
40.24坪 -
小山ビル
大阪市中央区高麗橋2
堺筋線「北浜」徒歩2分
42.57坪 -
東栄ビル
大阪市中央区高麗橋2
堺筋線「北浜」徒歩1分
40.29坪 -
アイケイビル
大阪市中央区高麗橋2
堺筋線「北浜」徒歩3分
43.0坪 -
大山ビル
大阪市中央区平野町1
堺筋線「北浜」徒歩3分
45.37坪 -
イシモトビル
大阪市中央区平野町2
堺筋線「北浜」徒歩2分
42.04坪
























