谷町高橋ビル 8階-No.53406
谷町高橋ビル 基本情報
| 種別 | 貸事務所(物件番号:53406) |
|---|---|
| 物件名 | 谷町高橋ビル |
| 住所 | 大阪市中央区安堂寺町1-3-8 |
| 所在階 | 8階部分フロア号室 その他、貸室 |
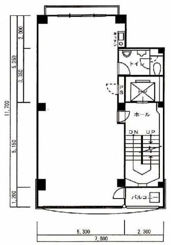
| 契約面積 | 19.51 坪・ 64.50 ㎡ |
| 賃料 | 総額
136,570 円 (税抜)・坪単価
7,000 円/坪 (税抜) 総額 150,227 円(税含む) |
| 共益費 | 総額 39,020 円 (税抜)・坪単価 2,000 円/坪 (税抜) 総額 42,922 円 (税含む) |
| 月額合計 | 総額 175,590 円(税抜)・坪単価 9,000 円(税抜) 総額 193,149 円 (税含む) |
| 敷金 | 819,420 円 |
| 解約引 | 50% |
| 最寄駅 |
谷町線 『
谷町六丁目 』
1 分
谷町線 『 谷町四丁目 』 8 分 長堀鶴見緑地線 『 谷町六丁目 』 1 分 |
| 構造 | 鉄筋コンクリート造 10階建 |
| 築年数 | 1988/1 【新耐震基準】 |
| 設備
|
|
| エレベーター | 1基 |
営業マンの一言 長堀通に面し視認性抜群!派遣会社に最適です。大阪メトロ谷町線 谷町六丁目駅徒歩1分 谷六駅出入り口真ん前のワンフロアワンテナント賃貸ビル |
|

※取引態様:仲介
※上記、金額は募集条件です。 条件交渉など、詳細についてはお問合せ下さい。
※広告作成中に契約済みの場合はご容赦下さい。
※図面等現況が相違する場合は現況優先にてご容赦下さい。
谷町高橋ビルの所在地周辺
ストリートビューを表示▼
谷町高橋ビル その他の部屋情報
物件を再検索する
谷町高橋ビル 関連物件
谷町高橋ビル 近隣のよく似た坪数の貸事務所
-
中川ビル(谷町5丁目)
大阪市中央区谷町5
谷町線「谷町六丁目」徒歩2分
18.15坪 -
大阪谷町ビル
大阪市中央区安堂寺町1
谷町線「谷町六丁目」徒歩1分
15.18坪 -
柴田第一ビル(柴田興産第一ビル)
大阪市中央区上本町西3
谷町線「谷町六丁目」徒歩6分
15.5坪





堀中 忠久






