合田ビル(有限会社 合田ビル) 2階-No.5395
中阪 浩之ナカサカ ヒロユキ
合田ビル(有限会社 合田ビル)の豆知識
「合田ビル」は、大阪市西区立売堀2丁目にございます、賃貸事務所ビル。
立売堀2丁目は、どちらかというと居住用建物や自社ビル使用の建物が多く、賃貸オフィス用物件の少ない地域です。
そんな中で「合田ビル」は、管理人さんも常駐し(平日・日中のみ)、機械警備もある、セキュリティ完備の希少オフィス。
スッキリとした外観、前面道路の道幅も広く、まわりの建物が低いので、8階建てですが視認性もあります。
貸室面積は、7坪~15坪の広さが中心ですので、使い勝手の良い・手頃な大きさ。
良心的な賃貸条件価格とともに、オススメ要因です。
“阿波座南公園”や“立売堀公園”、“大阪市立明治小学校”、“大阪府警察機動隊”など、周辺は、緑の豊かな・落ち着いた環境が整っています。
ただ一つ難点は、公共交通機関へのアクセスが中途半端なこと。
最寄が、地下鉄四つ橋線の「本町駅」より徒歩7分、長堀鶴見緑地線の「西大橋駅」からも約7分、中央線・千日前線の「阿波座駅」からも約7分。
4線どこからでも、利用できると考えて頂けると、頼もしい限りです。
一方、駐車場・駐輪場がございますので、お車・自転車をご利用の方にはおすすめです。
合田ビル(有限会社 合田ビル) 基本情報
| 種別 | 貸事務所(物件番号:5395) |
|---|---|
| 物件名 | 合田ビル(有限会社 合田ビル) |
| 住所 | 大阪市西区立売堀2-5-41 |
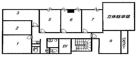
| 所在階 | 2階部分1号室 |
| 契約面積 | 9.5 坪・ 31.41 ㎡ |
| 最寄駅 |
四ツ橋線 『
本町 』
9 分
長堀鶴見緑地線 『 西大橋 』 6 分 中央線 『 阿波座 』 9 分 |
| 構造 | 鉄筋コンクリート造 8階建 |
| 築年数 | 1990/7 【新耐震基準】 (リニューアル: 2018年6月 ) |
| 設備
|
|
| エレベーター | 1基 |
営業マンの一言 阿波座・西大橋エリアでは希少な賃貸事務所ビル。駅から7分と距離は有りますが近隣ではグレードの良い貸事務所です。コンパクトな坪数から有りセキュリティー完備の安心。 |
|

※取引態様:仲介
※上記、金額は募集条件です。 条件交渉など、詳細についてはお問合せ下さい。
※広告作成中に契約済みの場合はご容赦下さい。
※図面等現況が相違する場合は現況優先にてご容赦下さい。
合田ビル(有限会社 合田ビル)の所在地周辺
入居テナント
物件を再検索する
合田ビル(有限会社 合田ビル) 関連物件
合田ビル(有限会社 合田ビル) 近隣のよく似た坪数の貸事務所
-
椿堂ビル
大阪市西区阿波座1
四ツ橋線「本町」徒歩1分
9.5坪 -
カーニープレイス本町ビル
大阪市西区阿波座1
四ツ橋線「本町」徒歩1分
5.06坪 -
GABIN西本町(キャビン西本町)
大阪市西区阿波座1
四ツ橋線「本町」徒歩4分
8.17坪 -
オフィスポート本町WEST(スペース西本町)
大阪市西区阿波座2
四ツ橋線「本町」徒歩5分
5.49坪 -
日宝四ツ橋中央ビル
大阪市西区立売堀1
四ツ橋線「本町」徒歩3分
10.0坪 -
グレース大阪本町
大阪市西区立売堀1
四ツ橋線「本町」徒歩3分
6.45坪 -
靱本町1丁目店舗・事務所
大阪市西区靱本町1
四ツ橋線「本町」徒歩2分
8.0坪 -
RE-014
大阪市西区靱本町1
四ツ橋線「本町」徒歩3分
9.0坪 -
SANKEY BLD(三恵ビル)
大阪市西区新町1
四ツ橋線「本町」徒歩6分
8.45坪 -
AXIS本町ビル(アクシス本町)
大阪市西区西本町1
四ツ橋線「本町」徒歩1分
10.0坪
























