アドーラブル南堀江 5階-No.54727
営業スタッフ紹介
中阪 浩之ナカサカ ヒロユキ
アドーラブル南堀江の豆知識
「大百物産ビル」は、大阪市西区南堀江3丁目にございます、賃貸事務所ビル。
大阪市営地下鉄千日前線「西長堀駅」より徒歩1分、長堀鶴見緑地線の「西長堀駅」からも徒歩3分の交通至便。
新なにわ筋に面した地上8階建てのビルは、中央図書館前交差点の角地に位置し、ガラス張りのスタイリッシュな外観。
1階にはコンビニエンスストアもあり、視認性も抜群。
また周辺は居住用建物が多く、事務所・テナントビルが少ない中、エレベーター・機械警備・個別空調、男女別トイレなど、ビルスペックの整ったビルは少なく、「大百物産ビル」は希少な賃貸物件です。
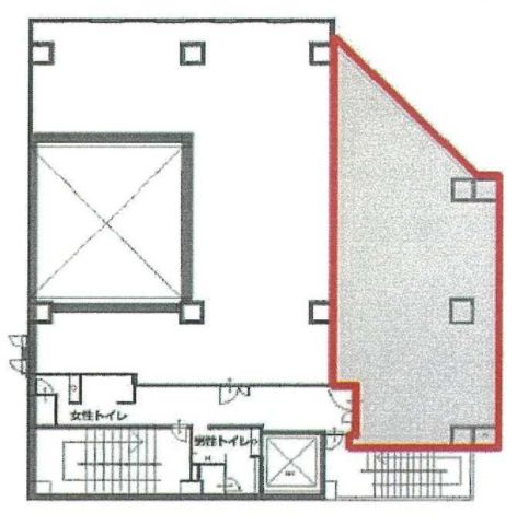
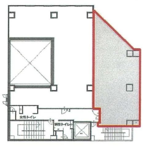
貸室は、約75坪のワンフロア貸し。
独立性の高いワンフロア・ワンテナント貸しですので、来客型オフィスや美容系店舗などの使用も可能。
また、窓面にカッティングシートの貼付もできます。
南堀江・北堀江の3・4丁目には、中央図書館をはじめてして、公園、学校、スーパーが多く、ロケーションの良いエリアです。
アドーラブル南堀江 基本情報
| 種別 | 店舗・事務所(物件番号:54727) |
|---|---|
| 物件名 | アドーラブル南堀江 |
| 住所 | 大阪市西区南堀江3-12-17 |
| 所在階 | 5階部分1号室 その他、貸室 |
| 契約面積 | 32.01 坪・ 105.82 ㎡ |
| 賃料 | 総額
305,550 円 (税抜)・坪単価
9,545 円/坪 (税抜) 総額 336,105 円(税含む) |
| 共益費 | 総額 58,200 円 (税抜)・坪単価 1,818 円/坪 (税抜) 総額 64,020 円 (税含む) |
| 月額合計 | 総額 363,750 円(税抜)・坪単価 11,364 円(税抜) 総額 400,125 円 (税含む) |
| 敷金 | 相談 |
| 礼金 | 3ヶ月 |
| 費用備考 | 賃貸保証加入要/火災保険加入要/その他諸費用あり |
| 最寄駅 |
長堀鶴見緑地線 『
西長堀 』
3 分
千日前線 『 西長堀 』 3 分 |
| 構造 | 鉄骨造 8階建 |
| 築年数 | 1989/5 【新耐震基準】 |
| 設備
|
|
| エレベーター | 1基 |
営業マンの一言 市立中央図書館前交差点前の賃貸事務所ビルです。新なにわ筋に面す視認性抜群の角ビル、空中店舗使用も可能です。 |
|

※取引態様:仲介
※上記、金額は募集条件です。 条件交渉など、詳細についてはお問合せ下さい。
※広告作成中に契約済みの場合はご容赦下さい。
※図面等現況が相違する場合は現況優先にてご容赦下さい。
アドーラブル南堀江の所在地周辺
ストリートビューを表示▼
アドーラブル南堀江 その他の部屋情報
| 階 | 号室 | 坪数 | ㎡数 | 賃料 | 共益費 | 敷金 | |
|---|---|---|---|---|---|---|---|
| 2階 | 32.0坪 | 105.79㎡ | 305,359 円 | 58,164 円 | 相談 | ![]() |
|
| 5階 | 2 | 45.59坪 | 150.72㎡ | 435,178 円 | 82,891 円 | 相談 | ![]() |























