御堂筋MTRビル 8階-No.55481
堀中 忠久ホリナカ タダヒサ
御堂筋MTRビルの豆知識
「御堂筋MTRビル」は、大阪市中央区淡路町3丁目にございます賃貸事務所。
大阪のメインストリート“御堂筋”沿い、「淀屋橋」と「本町」のほぼ中間に位置し、重厚感あふれる地下2階・地上13階建てオフィスビル。
視認性の高さから、中国銀行など来店型オフィスが空中階に入居しています。
御堂筋側に吹き抜け空間を大きくとった、ゆとりのメインエントランス。
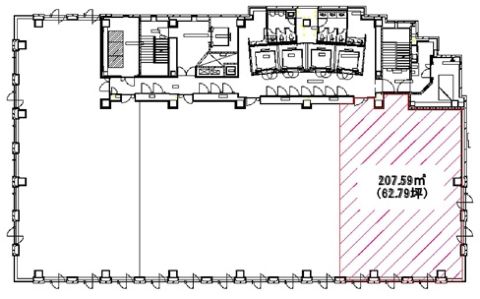
基準階面積250坪ある貸室は、天井高2.7メートルの快適なオフィススペース。
約50坪からの整形分割ができ、いずれも御堂筋の眺望あり。
フルスペックのビル装備、駐車場やスモーキングエリアの設置もあります。
地下鉄御堂筋線の「本町駅」1番出入り口より徒歩3分。
「淀屋橋駅」からも徒歩4分の好アクセスなビジネス拠点です。
御堂筋MTRビル 基本情報
| 種別 | 貸事務所(物件番号:55481) |
|---|---|
| 物件名 | 御堂筋MTRビル |
| 住所 | 大阪市中央区淡路町3-6-3 |
| 所在階 | 8階部分号室 その他、貸室 |
| 契約面積 | 62.79 坪・ 207.57 ㎡ |
| 賃料 | お電話・メールにてお問合下さい。 |
| 共益費 | お電話・メールにてお問合下さい。 |
| 月額合計 | お電話・メールにてお問合下さい。 |
| 敷金 | お電話・メールにてお問合下さい。 |
| 最寄駅 |
御堂筋線 『
本町 』
3 分
御堂筋線 『 淀屋橋 』 4 分 四ツ橋線 『 本町 』 6 分 |
| 構造 | 鉄骨鉄筋コンクリート造 13階建 /地下 2 階 |
| 築年数 | 1999/3 【新耐震基準】 |
| 設備
|
|
| エレベーター | 4基 |
営業マンの一言 御堂筋に面したハイグレード賃貸事務所ビル大阪メトロ御堂筋線 本町駅徒歩3分 淀屋橋駅・肥後橋駅・四ツ橋本町駅徒歩圏内 大阪ビジネス街本町・淀屋橋エリアの大型賃貸オフィス |
|
| 備考 | リフレッシュルーム |

※取引態様:仲介
※上記、金額は募集条件です。 条件交渉など、詳細についてはお問合せ下さい。
※広告作成中に契約済みの場合はご容赦下さい。
※図面等現況が相違する場合は現況優先にてご容赦下さい。
御堂筋MTRビルの所在地周辺
御堂筋MTRビル その他の部屋情報
| 階 | 号室 | 坪数 | ㎡数 | 賃料 | 共益費 | 敷金 | |
|---|---|---|---|---|---|---|---|
| 4階 | フロア | 249.8坪 | 825.79㎡ | お電話・メールにて お問い合わせください。 | ![]() |
||
| 7階 | 113.51坪 | 375.24㎡ | お電話・メールにて お問い合わせください。 | ![]() |
|||
| 8階 | 50.72坪 | 167.67㎡ | お電話・メールにて お問い合わせください。 | ![]() |
|||
| 12階 | B | 84.79坪 | 280.30㎡ | お電話・メールにて お問い合わせください。 | ![]() |
||
物件を再検索する
御堂筋MTRビル 関連物件
御堂筋MTRビル 近隣のよく似た坪数の貸事務所
-
SYNASIA大阪本町ビル(FDS大阪本町)
大阪市中央区本町3
御堂筋線「本町」徒歩1分
69.49坪 -
オリックス本町ビル
大阪市西区西本町1
御堂筋線「本町」徒歩3分
67.28坪 -
ナカヒロビル
大阪市中央区安土町3
御堂筋線「本町」徒歩0.2分
62.12坪 -
本町ハイエストビル
大阪市中央区淡路町4
御堂筋線「本町」徒歩5分
64.51坪 -
VORT御堂筋本町ビル
大阪市中央区瓦町4
御堂筋線「本町」徒歩3分
69.82坪 -
南星瓦町ビル
大阪市中央区瓦町4
御堂筋線「本町」徒歩4分
69.38坪 -
VPO本町セントラル
大阪市中央区北久宝寺町4
御堂筋線「本町」徒歩3分
60.6坪 -
VORT御堂筋本町Ⅱ
大阪市中央区久太郎町3
御堂筋線「本町」徒歩6分
66.97坪 -
大阪センタービル
大阪市中央区久太郎町4
御堂筋線「本町」徒歩0分
67.34坪 -
大雅ビル
大阪市中央区備後町3
御堂筋線「本町」徒歩1分
63.0坪































