長堀ビル 3階-No.55572
長堀ビル 基本情報
| 種別 | 貸事務所(物件番号:55572) |
|---|---|
| 物件名 | 長堀ビル |
| 住所 | 大阪市中央区南船場1-17-21 |
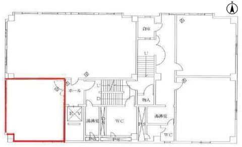
| 所在階 | 3階部分1号室 その他、貸室 |
| 契約面積 | 8.0 坪・ 26.45 ㎡ |
| 賃料 | 総額
相談 (税抜)・坪単価
相談 (税抜) 総額 (税含む) |
| 共益費 | 総額 賃料に含む (税抜)・坪単価 賃料に含む (税抜) 総額 賃料に含む (税含む) |
| 月額合計 | 総額 相談(税抜)・坪単価 (税抜) 総額 (税含む) |
| 敷金 | 6ヶ月 |
| 解約引 | 相談 |
| 費用備考 | 賃貸保証加入要/火災保険加入要 |
| 最寄駅 |
堺筋線 『
長堀橋 』
1 分
長堀鶴見緑地線 『 長堀橋 』 2 分 御堂筋線 『 心斎橋 』 8 分 |
| 構造 | 鉄筋コンクリート造 6階建 |
| 築年数 | 1970/12 |
| 設備
|
|
| エレベーター | 1基 |
営業マンの一言 独立開業向けオフィス大阪メトロ堺筋線 長堀橋駅直ぐの好立地 堺筋に面した角の貸事務所!近隣には銀行なども多く心斎橋駅からも徒歩圏 |
|
| 備考 | 貸し会議室 |

※取引態様:仲介
※上記、金額は募集条件です。 条件交渉など、詳細についてはお問合せ下さい。
※広告作成中に契約済みの場合はご容赦下さい。
※図面等現況が相違する場合は現況優先にてご容赦下さい。
長堀ビルの所在地周辺
長堀ビル その他の部屋情報
物件を再検索する
長堀ビル 関連物件
長堀ビル 近隣のよく似た坪数の貸事務所
-
中博ビル(ナカヒロ)
大阪市中央区博労町2
堺筋線「長堀橋」徒歩5分
6.9坪 -
クレディ長堀橋ビル
大阪市中央区島之内1
堺筋線「長堀橋」徒歩1分
7.59坪 -
大起興産長堀橋ビル
大阪市中央区島之内1
堺筋線「長堀橋」徒歩0.3分
9.35坪 -
グランドメゾン心斎橋
大阪市中央区東心斎橋1
堺筋線「長堀橋」徒歩2分
7.3坪 -
TABIYADOビル心斎橋
大阪市中央区南船場1
堺筋線「長堀橋」徒歩5分
8.47坪 -
グラスコート
大阪市中央区南船場1
堺筋線「長堀橋」徒歩2分
8.11坪 -
ブルーク長堀橋ビル
大阪市中央区南船場1
堺筋線「長堀橋」徒歩5分
7.68坪 -
ワイケー南船場ビル(旧:ライト南船場)
大阪市中央区南船場1
堺筋線「長堀橋」徒歩3分
8.88坪 -
SANWAトレーディングビル(サンワトレーディングビル)
大阪市中央区南船場1
堺筋線「長堀橋」徒歩2分
9.53坪 -
長堀八千代ビル
大阪市中央区南船場1
堺筋線「長堀橋」徒歩2分
5.23坪







中阪 浩之













