花原第1ビル 2階-No.7911
花原第1ビル 基本情報
| 種別 | 貸事務所(物件番号:7911) |
|---|---|
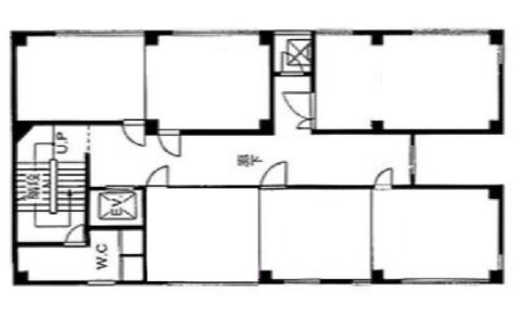
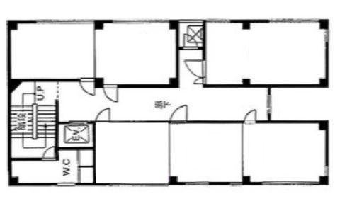
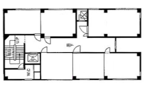
| 物件名 | 花原第1ビル
大道理に面した南向きの貸室・ドア2箇所あります。 |
| 住所 | 大阪市淀川区西中島6-8-9 |
| 所在階 | 2階部分1号室 その他、貸室 |
| 契約面積 | 28.57 坪・ 94.45 ㎡ |
| 賃料 | 総額
114,280 円 (税抜)・坪単価
4,000 円/坪 (税抜) 総額 125,708 円(税含む) |
| 共益費 | 総額 99,995 円 (税抜)・坪単価 3,500 円/坪 (税抜) 総額 109,995 円 (税含む) |
| 月額合計 | 総額 214,275 円(税抜)・坪単価 7,500 円(税抜) 総額 235,703 円 (税含む) |
| 保証金 | 100,000 円 |
| 解約引 | 600,000円 |
| 最寄駅 |
御堂筋線 『
西中島南方 』
4 分
御堂筋線 『 新大阪 』 7 分 |
| 構造 | 鉄筋コンクリート造 6階建 |
| 築年数 | 1979/3 |
| 設備
|
|
| エレベーター | 1基 |
営業マンの一言 ツインビルのような外観。西中島エリアの賃貸オフィス。新大阪駅も徒歩圏”格安価格で設定しています。 |
|

※取引態様:仲介
※上記、金額は募集条件です。 条件交渉など、詳細についてはお問合せ下さい。
※広告作成中に契約済みの場合はご容赦下さい。
※図面等現況が相違する場合は現況優先にてご容赦下さい。
花原第1ビルの所在地周辺
花原第1ビル その他の部屋情報
物件を再検索する
花原第1ビル 近隣のよく似た坪数の貸事務所
-
新大阪CSPビル本館
大阪市淀川区西中島1
御堂筋線「西中島南方」徒歩2分
29.25坪 -
プロジェクトビル
大阪市淀川区西中島3
御堂筋線「西中島南方」徒歩4分
27.88坪 -
新居第10ビル
大阪市淀川区西中島3
御堂筋線「西中島南方」徒歩5分
29.07坪 -
新大阪南方ビル
大阪市淀川区西中島3
御堂筋線「西中島南方」徒歩2分
27.35坪 -
NLC新大阪三洋ビル
大阪市淀川区西中島4
御堂筋線「西中島南方」徒歩3分
29.28坪 -
新大阪北田ビル
大阪市淀川区西中島4
御堂筋線「西中島南方」徒歩5分
26.49坪 -
花原第3ビル
大阪市淀川区西中島4
御堂筋線「西中島南方」徒歩5分
26.6坪 -
新大阪ローズビル
大阪市淀川区西中島5
御堂筋線「西中島南方」徒歩3分
29.13坪 -
新堂新大阪ビル
大阪市淀川区西中島6
御堂筋線「西中島南方」徒歩3分
27.63坪 -
サムティフェイム新大阪Ⅰ(1号館)
大阪市淀川区西中島6
御堂筋線「西中島南方」徒歩4分
26.69坪






中阪 浩之













