マルサンビル 8階-No.8336
堀中 忠久ホリナカ タダヒサ
マルサンビルの豆知識
「マルサンビル」は、大阪市北区天神橋2丁目にございます、賃貸事務所・テナントビルです。
国道1号線から北へ天神橋筋商店街に入ってスグ。賑やかな商店街のなかでも、もっとも人通りの多い場所。
大阪市営地下鉄・谷町線・堺筋線の「南森町駅」より徒歩1分。
JR東西線の「大阪天満宮駅」からも徒歩3分の交通至便。
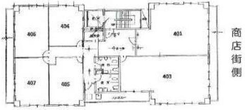
基準階面積は約70坪。
10~20坪前後の小さなお部屋に区画割していますので、使い勝手も◎。
使用用途も、オフィスはもちろん、店舗使用も可能となっております。是非、業種等ご相談ください。
“天神橋筋商店街”は、南北約2.6㎞に約600ものお店がならぶ、日本一長いアーケード商店街。
安くて、美味しいお店がたくさんありますが、見ているだけでも十分楽しめます。
大阪天満宮さんもあり、大阪らしさが満喫できる街です。
マルサンビル その他の貸室情報
マルサンビル 基本情報
| 種別 | 貸事務所(物件番号:8336) |
|---|---|
| 物件名 | マルサンビル |
| 住所 | 大阪市北区天神橋2-北-2-26 |
| 所在階 | 8階部分1号室 |
| 契約面積 | 14.93 坪・ 49.36 ㎡ |
| 最寄駅 |
堺筋線 『
南森町 』
1 分
谷町線 『 南森町 』 1 分 東西線 『 大阪天満宮 』 3 分 |
| 構造 | S(鉄骨)造 9階建 /地下 1 階 |
| 築年数 | 1989/3 【新耐震基準】 |
| 設備
|
|
| エレベーター | 1基 |
営業マンの一言 店舗使用も可。業種はご相談ください。天神橋筋商店街に面したオフィス・テナントビル。 |
|

※取引態様:仲介
※上記、金額は募集条件です。 条件交渉など、詳細についてはお問合せ下さい。
※広告作成中に契約済みの場合はご容赦下さい。
※図面等現況が相違する場合は現況優先にてご容赦下さい。
マルサンビルの所在地周辺
物件を再検索する
マルサンビル 近隣のよく似た坪数の貸事務所
-
藤原ビル
大阪市北区南森町2
堺筋線「南森町」徒歩1分
12.87坪 -
伊沢ビル
大阪市北区紅梅町
堺筋線「南森町」徒歩2分
11.0坪 -
フジタビル (藤田ビル)
大阪市北区天神橋1
堺筋線「南森町」徒歩6分
15.0坪 -
キャビン天神橋ビル(ダイヨービル)
大阪市北区天神橋1
堺筋線「南森町」徒歩5分
11.5坪 -
千代田第一ビル
大阪市北区天神橋2
堺筋線「南森町」徒歩1分
11.63坪 -
松原ビル
大阪市北区天神橋2
堺筋線「南森町」徒歩1分
15.0坪 -
ステップイン南森町ビル
大阪市北区天神橋2
堺筋線「南森町」徒歩1分
13.0坪 -
第2東寺町ビル
大阪市北区同心1
堺筋線「南森町」徒歩8分
10.78坪 -
第三新興ビル(第3新興ビル)
大阪市北区西天満3
堺筋線「南森町」徒歩3分
11.98坪 -
西天満福岡ビルディング
大阪市北区西天満3
堺筋線「南森町」徒歩3分
15.0坪



















