プレジール北堀江ビル

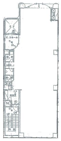
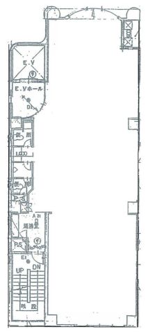
プレジール北堀江ビル 貸室情報
| 種別 | 事務所 |
|---|---|
| 物件名 | プレジール北堀江ビル |
| 住所 | 大阪市西区北堀江1-22-25 |
| 最寄駅 | 四ツ橋線 『
四ツ橋 』
5 分
長堀鶴見緑地線 『 西大橋 』 2 分 |
| 構造 | 鉄骨鉄筋コンクリート造 11階建 /地下 1 階 |
| 築年数 | 1991/3 【新耐震基準】 |
| 設備
|
|
営業マンの一言 ワンフロアワンテナント!セコム警備有り |
|

※取引態様:仲介
※上記、金額は募集条件です。 条件交渉など、詳細についてはお問合せ下さい。
※広告作成中に契約済みの場合はご容赦下さい。
※図面等現況が相違する場合は現況優先にてご容赦下さい。






中阪 浩之








