プレジール北堀江ビル 7階-No.13998
プレジール北堀江ビル 基本情報
| 種別 | 事務所(物件番号:13998) |
|---|---|
| 物件名 | プレジール北堀江ビル
ワンフロアワンテナント!セコム警備有り |
| 住所 | 大阪市西区北堀江1-22-25 |
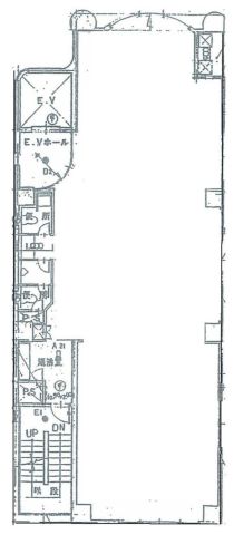
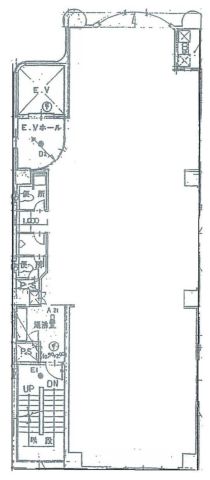
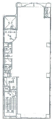
| 所在階 | 7階部分フロア号室 |
| 契約面積 | 49.16 坪・ 162.52 ㎡ |
| 賃料 | 総額
18,680,800 円 (税抜)・坪単価
380,000 円/坪 (税抜) 総額 20,548,880 円(税含む) |
| 共益費 | 総額 賃料に含む (税抜)・坪単価 賃料に含む (税抜) 総額 賃料に含む (税含む) |
| 月額合計 | 総額 18,680,800 円(税抜)・坪単価 380,000 円(税抜) 総額 20,548,880 円 (税含む) |
| 保証金 | 3ヶ月 |
| 礼金 | 2ヶ月 |
| 費用備考 | 賃貸保証加入要 |
| 最寄駅 |
四ツ橋線 『
四ツ橋 』
5 分
長堀鶴見緑地線 『 西大橋 』 2 分 |
| 構造 | 鉄骨鉄筋コンクリート造 11階建 /地下 1 階 |
| 築年数 | 1991/3 【新耐震基準】 |
| 設備
|
|
| エレベーター | 1基 |
営業マンの一言 諸条件相談可!堀江ワンフロアテナント! |
|

※取引態様:仲介
※上記、金額は募集条件です。 条件交渉など、詳細についてはお問合せ下さい。
※広告作成中に契約済みの場合はご容赦下さい。
※図面等現況が相違する場合は現況優先にてご容赦下さい。
プレジール北堀江ビルの所在地周辺
ストリートビューを表示▼






中阪 浩之







