新大阪和幸ビル

新大阪和幸ビル 貸室情報
| 種別 | 貸事務所 |
|---|---|
| 物件名 | 新大阪和幸ビル |
| 住所 | 大阪市淀川区宮原4-6-18 |
| 最寄駅 | 御堂筋線 『
新大阪 』
6 分
東海道本線 『 新大阪 』 8 分 |
| 構造 | 鉄骨鉄筋コンクリート造 12階建 /地下 1 階 |
| 築年数 | 1993/10 【新耐震基準】 |
| 設備
|
|
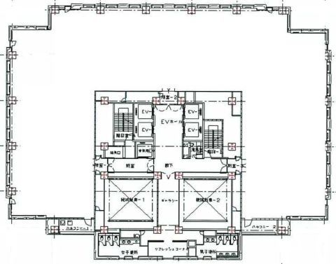
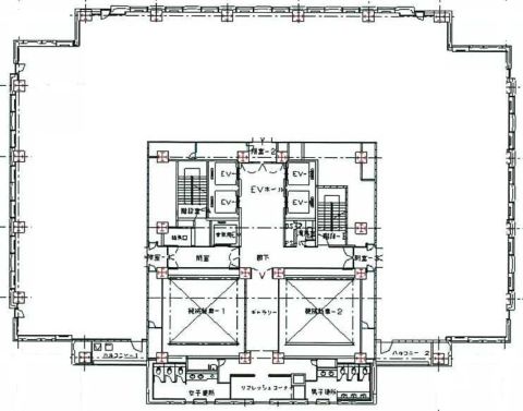
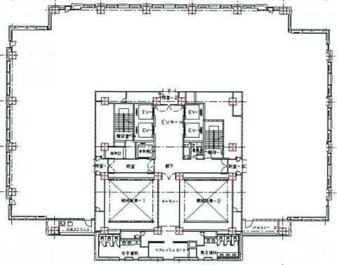
営業マンの一言 大阪メトロ御堂筋線 心斎橋駅徒歩6分 視認性の高い大型テナントビル 各階にリフレッシュコーナー有り充実のビルスペックです |
|
| 備考 | 貸し会議室/リフレッシュルーム |

※取引態様:仲介
※上記、金額は募集条件です。 条件交渉など、詳細についてはお問合せ下さい。
※広告作成中に契約済みの場合はご容赦下さい。
※図面等現況が相違する場合は現況優先にてご容赦下さい。





中阪 浩之










