新大阪和幸ビル 1階-No.53257
新大阪和幸ビル 基本情報
| 種別 | 貸事務所(物件番号:53257) |
|---|---|
| 物件名 | 新大阪和幸ビル |
| 住所 | 大阪市淀川区宮原4-6-18 |
| 所在階 | 1階部分路面号室 その他、貸室 |
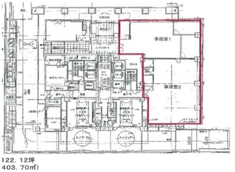
| 契約面積 | 122.12 坪・ 403.71 ㎡ |
| 賃料 | 総額
相談 (税抜)・坪単価
相談 (税抜) 総額 (税含む) |
| 共益費 | 総額 488,480 円 (税抜)・坪単価 4,000 円/坪 (税抜) 総額 537,328 円 (税含む) |
| 月額合計 | 総額 相談(税抜)・坪単価 (税抜) 総額 (税含む) |
| 敷金 | 10ヶ月 |
| 解約引 | 全額返金 |
| 最寄駅 |
御堂筋線 『
新大阪 』
6 分
東海道本線 『 新大阪 』 8 分 |
| 構造 | 鉄骨鉄筋コンクリート造 12階建 /地下 1 階 |
| 築年数 | 1993/10 【新耐震基準】 |
| 設備
|
|
| エレベーター | 5基 |
営業マンの一言 大阪メトロ御堂筋線 心斎橋駅徒歩6分 視認性の高い大型テナントビル 各階にリフレッシュコーナー有り充実のビルスペックです |
|
| 備考 | 貸し会議室/リフレッシュルーム |

※取引態様:仲介
※上記、金額は募集条件です。 条件交渉など、詳細についてはお問合せ下さい。
※広告作成中に契約済みの場合はご容赦下さい。
※図面等現況が相違する場合は現況優先にてご容赦下さい。
新大阪和幸ビルの所在地周辺
ストリートビューを表示▼





丹羽 美智子










