トヤマビル本館

丹羽 美智子ニワミチコ
「トヤマビル」は、大阪市中央区安土町1丁目にございます、賃貸事務所。
本館と中央館、新館からなる、堺筋に面した大型ビル。
中央館と新館は、建物内で行き来が可能。
9階建てと高さはありませんが、落ち着きあるビル構えが、安心感をあたえてくれるオフィス。
築後40年以上になりますが、管理もしっかりしており、駅近の便利さから、人気の高さを誇ります。
大阪市営地下鉄・堺筋線・中央線の「堺筋本町駅」より徒歩1分。
メインストリートの“御堂筋”エリアも徒歩圏内と、ロケーションの良いビジネス拠点です。
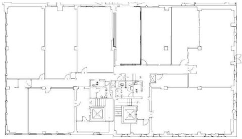
広さは、約20~40坪の貸室が中心ですが、10坪前後の小さいお部屋もございますので、お問合せくださいませ。
堺筋本町界隈は、ビジネス街として多くの企業が集まるエリア。
また、中央区役所や大阪商工会議所、大阪産業創造館、船場センタービルなど多くの人々で賑わう、商都大阪の中心部です。
トヤマビル本館 貸室情報
| 種別 | 貸事務所 |
|---|---|
| 物件名 | トヤマビル本館 |
| 住所 | 大阪市中央区安土町1-7-13 |
| 最寄駅 | 堺筋線 『
堺筋本町 』
1 分
御堂筋線 『 本町 』 5 分 堺筋線 『 北浜 』 5 分 |
| 構造 | 鉄筋コンクリート造 9階建 /地下 1 階 |
| 築年数 | 1953/3 (リニューアル: 1973 ) |
| 設備
|
|
営業マンの一言 堺筋面す大型ビル”管理の良いオフィスビル。諸条件大幅相談可! |
|
| 備考 | 貸し会議室/リフレッシュルーム |

※取引態様:仲介
※上記、金額は募集条件です。 条件交渉など、詳細についてはお問合せ下さい。
※広告作成中に契約済みの場合はご容赦下さい。
※図面等現況が相違する場合は現況優先にてご容赦下さい。
トヤマビル本館の所在地周辺
物件を再検索する
近隣のよく似た坪数の貸事務所
-
(仮称)本町一丁目PJ
大阪市中央区本町1
堺筋線「堺筋本町」徒歩3分
32.3坪 -
ハウザー堺筋本町駅前ビル
大阪市中央区安土町2
堺筋線「堺筋本町」徒歩0.5分
30.0坪 -
CBMビル
大阪市中央区淡路町2
堺筋線「堺筋本町」徒歩4分
35.94坪 -
淡路町パークビル2号館
大阪市中央区淡路町2
堺筋線「堺筋本町」徒歩6分
33.0坪 -
新瓦町ビル
大阪市中央区瓦町2
堺筋線「堺筋本町」徒歩4分
31.61坪 -
三星SKビル
大阪市中央区北久宝寺町1
堺筋線「堺筋本町」徒歩3分
33.0坪 -
ネオフィス堺筋本町
大阪市中央区北久宝寺町1
堺筋線「堺筋本町」徒歩3分
30.49坪 -
三星中央別館ビル
大阪市中央区久太郎町1
堺筋線「堺筋本町」徒歩2分
32.0坪 -
SD堺筋本町ビル(本町EAST)
大阪市中央区久太郎町1
堺筋線「堺筋本町」徒歩1分
31.8坪 -
三栄ビル
大阪市中央区久太郎町1
堺筋線「堺筋本町」徒歩1分
32.97坪





















