近松ビル

営業スタッフ紹介
中阪 浩之ナカサカ ヒロユキ
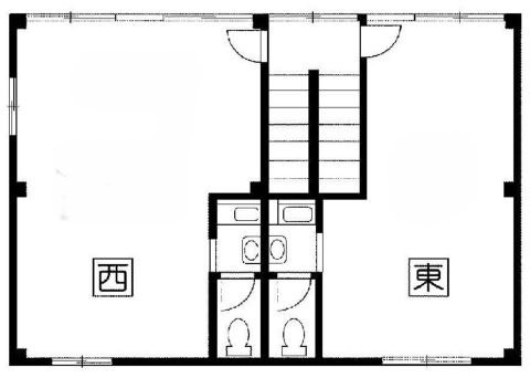
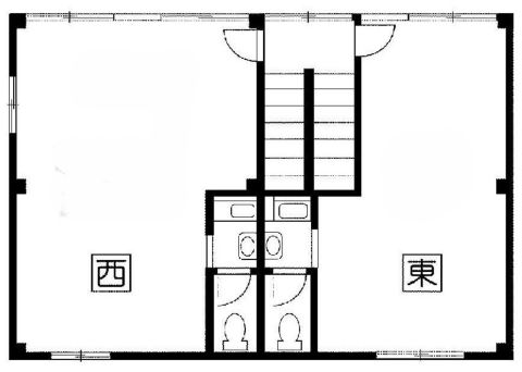
近松ビル 貸室情報
| 種別 | 事務所・店舗 |
|---|---|
| 物件名 | 近松ビル |
| 住所 | 大阪市中央区石町2-2-20 |
| 最寄駅 | 谷町線 『 天満橋 』 2 分 |
| 構造 | 3階建 |
| 築年数 | 1963/1 |
| 設備
|
|
営業マンの一言 |
|

※取引態様:仲介
※上記、金額は募集条件です。 条件交渉など、詳細についてはお問合せ下さい。
※広告作成中に契約済みの場合はご容赦下さい。
※図面等現況が相違する場合は現況優先にてご容赦下さい。
近松ビルの所在地周辺
物件を再検索する
近隣のよく似た坪数の貸事務所
-
ビルキューブ
大阪市北区天満1
谷町線「天満橋」徒歩6分
9.98坪 -
桃井第2ビル
大阪市北区天満2
谷町線「天満橋」徒歩3分
8.35坪 -
福智(フクチ)ビル
大阪市中央区内淡路町1
谷町線「天満橋」徒歩5分
7.0坪 -
サンビラ大手前ビル
大阪市中央区内平野町1
谷町線「天満橋」徒歩5分
8.61坪 -
ニューライフ大手前参番館
大阪市中央区内平野町2
谷町線「天満橋」徒歩8分
7.12坪 -
大阪文化会館
大阪市中央区内平野町2
谷町線「天満橋」徒歩7分
7.16坪 -
スタジオ64
大阪市中央区内平野町2
谷町線「天満橋」徒歩7分
7.11坪 -
大手前ビル
大阪市中央区大手前1
谷町線「天満橋」徒歩5分
6.35坪 -
光養ビル
大阪市中央区大手前1
谷町線「天満橋」徒歩1分
7.69坪 -
千歳第一ビル(千歳第1ビル)
大阪市中央区北浜東
谷町線「天満橋」徒歩3分
8.7坪

















