近松ビル 3階-No.1448
中阪 浩之ナカサカ ヒロユキ
近松ビル 基本情報
| 種別 | 事務所・店舗(物件番号:1448) |
|---|---|
| 物件名 | 近松ビル |
| 住所 | 大阪市中央区石町2-2-20 |
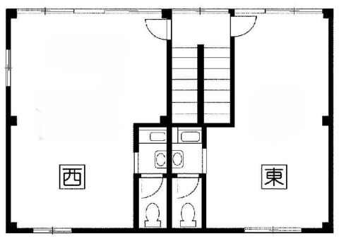
| 所在階 | 3階部分号室 |
| 契約面積 | 8.0 坪・ 26.45 ㎡ |
| 賃料 | 総額
40,000 円 (税抜)・坪単価
5,000 円/坪 (税抜) 総額 44,000 円(税含む) |
| 共益費 | 総額 10,000 円 (税抜)・坪単価 1,250 円/坪 (税抜) 総額 11,000 円 (税含む) |
| 月額合計 | 総額 50,000 円(税抜)・坪単価 6,250 円(税抜) 総額 55,000 円 (税含む) |
| 敷金 | 55,000 円 |
| 礼金 | 110,000円(税含む) |
| 費用備考 | 賃貸保証加入要/火災保険加入要/その他諸費用あり |
| 最寄駅 | 谷町線 『 天満橋 』 2 分 |
| 構造 | 3階建 |
| 築年数 | 1963/1 |
| 設備
|
|
営業マンの一言 |
|

※取引態様:仲介
※上記、金額は募集条件です。 条件交渉など、詳細についてはお問合せ下さい。
※広告作成中に契約済みの場合はご容赦下さい。
※図面等現況が相違する場合は現況優先にてご容赦下さい。
近松ビルの所在地周辺
物件を再検索する
近松ビル 近隣のよく似た坪数の貸事務所
-
ビルキューブ
大阪市北区天満1
谷町線「天満橋」徒歩6分
9.98坪 -
桃井第2ビル
大阪市北区天満2
谷町線「天満橋」徒歩3分
8.35坪 -
福智(フクチ)ビル
大阪市中央区内淡路町1
谷町線「天満橋」徒歩5分
7.0坪 -
サンビラ大手前ビル
大阪市中央区内平野町1
谷町線「天満橋」徒歩5分
8.61坪 -
ニューライフ大手前参番館
大阪市中央区内平野町2
谷町線「天満橋」徒歩8分
7.12坪 -
大阪文化会館
大阪市中央区内平野町2
谷町線「天満橋」徒歩7分
7.16坪 -
スタジオ64
大阪市中央区内平野町2
谷町線「天満橋」徒歩7分
7.11坪 -
大手前ビル
大阪市中央区大手前1
谷町線「天満橋」徒歩5分
6.35坪 -
光養ビル
大阪市中央区大手前1
谷町線「天満橋」徒歩1分
7.69坪 -
千歳第一ビル(千歳第1ビル)
大阪市中央区北浜東
谷町線「天満橋」徒歩3分
8.7坪
















