内本町ヤマトビル

内本町ヤマトビル 貸室情報
| 種別 | 事務所・店舗 |
|---|---|
| 物件名 | 内本町ヤマトビル |
| 住所 | 大阪市中央区本町橋2-26 |
| 最寄駅 | 堺筋線 『 堺筋本町 』 5 分 |
| 構造 | 鉄骨造 8階建 |
| 築年数 | 1984/6 【新耐震基準】 |
| 設備
|
|
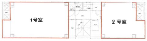
営業マンの一言 道路に面した明るい室内です。本町通りに面した、賃料格安オフィスビルです。 |
|

※取引態様:仲介
※上記、金額は募集条件です。 条件交渉など、詳細についてはお問合せ下さい。
※広告作成中に契約済みの場合はご容赦下さい。
※図面等現況が相違する場合は現況優先にてご容赦下さい。
内本町ヤマトビルの所在地周辺
物件を再検索する
近隣のよく似た坪数の貸事務所
-
本町ビル
大阪市中央区安土町1
堺筋線「堺筋本町」徒歩4分
18.0坪 -
プロパレス安土町ビル
大阪市中央区安土町1
堺筋線「堺筋本町」徒歩2分
16.94坪 -
グランドメゾン船場
大阪市中央区安土町1
堺筋線「堺筋本町」徒歩3分
18.66坪 -
日宝淡路町ビル
大阪市中央区淡路町1
堺筋線「堺筋本町」徒歩7分
16.23坪 -
I.S.O(アイ・エス・オービル)
大阪市中央区淡路町2
堺筋線「堺筋本町」徒歩6分
17.08坪 -
第3エーシービル
大阪市中央区淡路町2
堺筋線「堺筋本町」徒歩8分
15.83坪 -
瓦町ダイワビル(旧:がんすい)
大阪市中央区瓦町2
堺筋線「堺筋本町」徒歩2分
19.05坪 -
AXIS瓦町ビル(アクシス瓦町ビル)
大阪市中央区瓦町2
堺筋線「堺筋本町」徒歩3分
17.7坪 -
いずみやビル
大阪市中央区瓦町2
堺筋線「堺筋本町」徒歩4分
15.7坪 -
堺筋本町プラザビル
大阪市中央区北久宝寺町1
堺筋線「堺筋本町」徒歩4分
19.95坪










中阪 浩之













