内本町ヤマトビル 4階-No.54014
内本町ヤマトビル 基本情報
| 種別 | 貸事務所(物件番号:54014) |
|---|---|
| 物件名 | 内本町ヤマトビル |
| 住所 | 大阪市中央区本町橋2-26 |
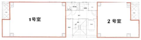
| 所在階 | 4階部分1号室 |
| 契約面積 | 18.41 坪・ 60.86 ㎡ |
| 賃料 | 総額
147,280 円 (税抜)・坪単価
8,000 円/坪 (税抜) 総額 162,008 円(税含む) |
| 共益費 | 総額 36,820 円 (税抜)・坪単価 2,000 円/坪 (税抜) 総額 40,502 円 (税含む) |
| 月額合計 | 総額 184,100 円(税抜)・坪単価 10,000 円(税抜) 総額 202,510 円 (税含む) |
| 敷金 | 1,767,360 円 |
| 解約引 | 10年未満20%引き・10年~20年未満10%引き・20年以上全額返金 |
| 最寄駅 | 堺筋線 『 堺筋本町 』 5 分 |
| 構造 | 鉄骨造 8階建 |
| 築年数 | 1984/6 【新耐震基準】 |
| 設備
|
|
| エレベーター | 1基 |
営業マンの一言 マイドーム大阪近くの貸事務所本町通りに面した、賃料格安オフィスビルです。 |
|

※取引態様:仲介
※上記、金額は募集条件です。 条件交渉など、詳細についてはお問合せ下さい。
※広告作成中に契約済みの場合はご容赦下さい。
※図面等現況が相違する場合は現況優先にてご容赦下さい。
内本町ヤマトビルの所在地周辺
物件を再検索する
内本町ヤマトビル 関連物件
内本町ヤマトビル 近隣のよく似た坪数の貸事務所
-
本町ビル
大阪市中央区安土町1
堺筋線「堺筋本町」徒歩4分
18.0坪 -
プロパレス安土町ビル
大阪市中央区安土町1
堺筋線「堺筋本町」徒歩2分
16.94坪 -
グランドメゾン船場
大阪市中央区安土町1
堺筋線「堺筋本町」徒歩3分
18.66坪 -
日宝淡路町ビル
大阪市中央区淡路町1
堺筋線「堺筋本町」徒歩7分
16.23坪 -
I.S.O(アイ・エス・オービル)
大阪市中央区淡路町2
堺筋線「堺筋本町」徒歩6分
17.08坪 -
第3エーシービル
大阪市中央区淡路町2
堺筋線「堺筋本町」徒歩8分
15.83坪 -
瓦町ダイワビル(旧:がんすい)
大阪市中央区瓦町2
堺筋線「堺筋本町」徒歩2分
19.05坪 -
AXIS瓦町ビル(アクシス瓦町ビル)
大阪市中央区瓦町2
堺筋線「堺筋本町」徒歩3分
17.7坪 -
いずみやビル
大阪市中央区瓦町2
堺筋線「堺筋本町」徒歩4分
15.7坪 -
堺筋本町プラザビル
大阪市中央区北久宝寺町1
堺筋線「堺筋本町」徒歩4分
19.95坪












中阪 浩之












