IBセンタービル(アイ・ビィセンタービル)

堀中 忠久ホリナカ タダヒサ
「IBセンタービル(アイビィセンター)」は、大阪市中央区南久宝寺町4丁目にございます賃貸事務所。
南御堂さんのスグ南側、1階にクロネコヤマトの集荷センターがあり、視認性も高いオフィスビルです。
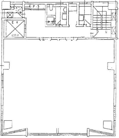
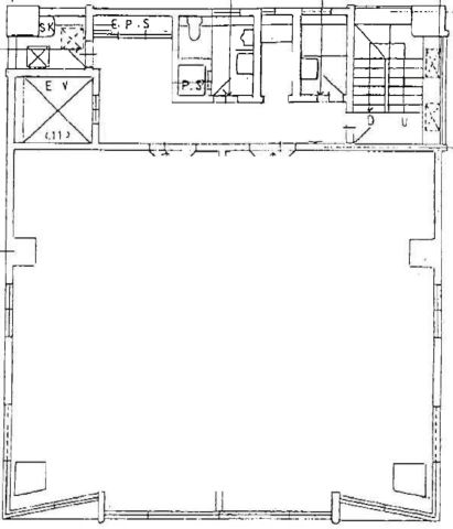
ワンフロア面積が43坪、2分割した約20坪の貸室プランもございます。
いずれも西向きの明るいオフィス空間が確保されています。
大阪のメインストリート“御堂筋”から近く、ビジネスエリアの“本町”やミナミの繁華街“心斎橋”が徒歩圏内の好立地な大阪ビジネス拠点。
交通も、御堂筋線、中央線、四ツ橋線の「本町駅」、や「心斎橋駅」が利用可能と、フットワーク抜群です。
IBセンタービル(アイ・ビィセンタービル) 貸室情報
| 種別 | 貸事務所 |
|---|---|
| 物件名 | IBセンタービル(アイ・ビィセンタービル) |
| 住所 | 大阪市中央区南久宝寺町4-4-12 |
| 最寄駅 | 御堂筋線 『
本町 』
4 分
中央線 『 本町 』 4 分 四ツ橋線 『 本町 』 6 分 |
| 構造 | 鉄骨鉄筋コンクリート造 9階建 |
| 築年数 | 1988/1 【新耐震基準】 |
| 設備
|
|
営業マンの一言 大阪・本町エリアの賃貸事務所。大阪メトロ御堂筋線 本町駅・大阪メトロ四ツ橋線 本町駅徒歩圏内 大阪ビジネス街の賃貸オフィスビル |
|

※取引態様:仲介
※上記、金額は募集条件です。 条件交渉など、詳細についてはお問合せ下さい。
※広告作成中に契約済みの場合はご容赦下さい。
※図面等現況が相違する場合は現況優先にてご容赦下さい。
IBセンタービル(アイ・ビィセンタービル)の所在地周辺
物件を再検索する
近隣のよく似た坪数の貸事務所
-
本町吉田ビル
大阪市西区阿波座1
御堂筋線「本町」徒歩2分
25.47坪 -
IENTO本町ビル(イエント本町)
大阪市中央区本町4
御堂筋線「本町」徒歩1分
29.29坪 -
中外ビル
大阪市中央区安土町3
御堂筋線「本町」徒歩1分
26.4坪 -
創建御堂筋ビル
大阪市中央区淡路町3
御堂筋線「本町」徒歩3分
28.43坪 -
瓦町スクエアビル
大阪市中央区瓦町2
御堂筋線「本町」徒歩6分
25.35坪 -
おおきにKOKODESU瓦町四丁目
大阪市中央区瓦町4
御堂筋線「本町」徒歩4分
27.13坪 -
南星瓦町ビル
大阪市中央区瓦町4
御堂筋線「本町」徒歩4分
27.56坪 -
本町コラボビル
大阪市中央区北久宝寺町4
御堂筋線「本町」徒歩3分
29.62坪 -
南本町エクセルビル
大阪市中央区久太郎町3
御堂筋線「本町」徒歩3分
26.94坪 -
オリックス久太郎町ビル(ORIX久太郎町ビル)
大阪市中央区久太郎町3
御堂筋線「本町」徒歩3分
26.88坪


















