新東和ビルB棟

中阪 浩之ナカサカ ヒロユキ
「新東和ビルB棟」は、大阪市中央区南船場4丁目にございます賃貸事務所。
大阪のメインストリート“御堂筋”と“長堀通り”から、ひと筋入った角地に位置する、地下1階・地上8階建ての好立地な賃貸オフィスビル。
地下鉄御堂筋線・長堀鶴見緑地線の「心斎橋駅」より徒歩2分。
四つ橋線の「四ツ橋駅」からも、徒歩4分の交通至便。
駐車場も併設されており、フットワークの良い大阪ビジネス拠点です。
1983年竣工。
隣接するA棟とは、館内で行き来ができ、管理も良いオフィス空間。
心斎橋・南船場は、大阪ミナミの中心地にあり、多くの企業がオフィスを構えるとともに有名ブランドショップやオシャレなお店が多く、多くの人で賑わうエリアです。
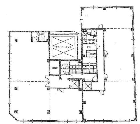
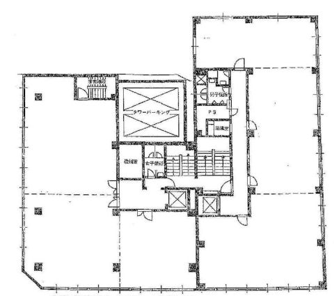
新東和ビルB棟 貸室情報
| 種別 | 事務所 |
|---|---|
| 物件名 | 新東和ビルB棟 |
| 住所 | 大阪市中央区南船場4-6-10 |
| 最寄駅 | 御堂筋線 『
心斎橋 』
2 分
四ツ橋線 『 四ツ橋 』 4 分 長堀鶴見緑地線 『 心斎橋 』 2 分 |
| 構造 | 鉄筋コンクリート造 8階建 /地下 1 階 |
| 築年数 | 1983/3 |
| 設備
|
|
営業マンの一言 バルコニー付きの明るいオフィスです。大阪のお洒落スポット「心斎橋」のオフィスビル、カフェやアパレルショップ、美容院等が多く周辺環境は非常に良い雰囲気となっております。 |
|

※取引態様:仲介
※上記、金額は募集条件です。 条件交渉など、詳細についてはお問合せ下さい。
※広告作成中に契約済みの場合はご容赦下さい。
※図面等現況が相違する場合は現況優先にてご容赦下さい。
新東和ビルB棟の所在地周辺
物件を再検索する
近隣のよく似た坪数の貸事務所
-
駒井ビル
大阪市中央区博労町3
御堂筋線「心斎橋」徒歩5分
31.46坪 -
トレスビル
大阪市中央区心斎橋筋1
御堂筋線「心斎橋」徒歩1分
34.35坪 -
アーバンBLD心斎橋
大阪市中央区西心斎橋1
御堂筋線「心斎橋」徒歩3分
32.73坪 -
DEP心斎橋ビル
大阪市中央区東心斎橋1
御堂筋線「心斎橋」徒歩5分
39.12坪 -
鶴の巣ビル
大阪市中央区東心斎橋1
御堂筋線「心斎橋」徒歩2分
34.16坪 -
ラインビルド心斎橋
大阪市中央区南船場3
御堂筋線「心斎橋」徒歩3分
34.06坪 -
おおきに南船場ビル
大阪市中央区南船場3
御堂筋線「心斎橋」徒歩3分
30.96坪 -
心斎橋MIDOビル
大阪市中央区南船場3
御堂筋線「心斎橋」徒歩3分
38.33坪 -
BRAVI三休橋
大阪市中央区南船場3
御堂筋線「心斎橋」徒歩3分
36.31坪 -
第二芦池ビル
大阪市中央区南船場3
御堂筋線「心斎橋」徒歩3分
34.56坪






















