心斎橋 店舗 1階-No.19757
中阪 浩之ナカサカ ヒロユキ
当該ビルの豆知識
南船場SOHOビルはその名の通り、SOHOとして使用が出来るテンナトビルです。
オシャレな街・船場4丁目にふさわしく、エントランスの導線として建物の奥中央に吹き抜けのパティオを配置したデザイナーズビル。
上階はセンターコアで仕切られた空間がショップとして、オフィスとしての感性を研ぎ澄ましてくれます。
さらに5階より上は、SOHOタイプとなっており、クリエイティブなお仕事の方に人気があります。
SOHOとは、スモールオフィス・ホームオフィスの略語です。小さなオフィスや自宅の一部を仕事場にしてビジネスを行うことを指していることから、オフィスとしても使用でき、かつ寝泊りもできるつまりバス・トイレがあり居住も可能な貸室を「SOHOタイプ」・「SOHO可オフィス」などと呼んでいます。通常、オフィスとして賃貸した場合は居住することが禁じれらており、逆にマンションなど居住物件では、事務所としての使用が認められておらず法人登記ができない場合がほとんどです。
心斎橋 店舗 基本情報
| 種別 | 店舗(物件番号:19757) |
|---|---|
| 物件名 | 心斎橋 店舗 |
| 住所 | 大阪市中央区南船場4 |
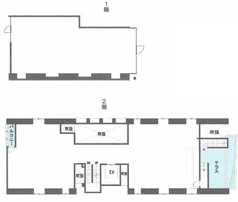
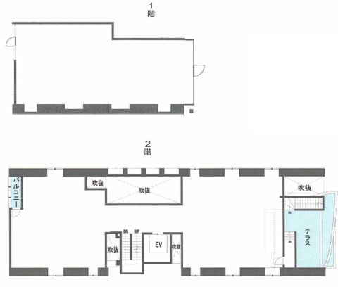
| 所在階 | 1階部分号室 その他、貸室 |
| 契約面積 | 27.44 坪・ 90.72 ㎡ |
| 賃料 | お電話・メールにてお問合下さい。 |
| 共益費 | お電話・メールにてお問合下さい。 |
| 月額合計 | お電話・メールにてお問合下さい。 |
| 保証金 | お電話・メールにてお問合下さい。 |
| 費用備考 | 賃貸保証加入要 |
| 最寄駅 |
御堂筋線 『
心斎橋 』
5 分
長堀鶴見緑地線 『 心斎橋 』 5 分 四ツ橋線 『 四ツ橋 』 6 分 |
| 構造 | 鉄筋コンクリート造 9階建 |
| 築年数 | 2001/11 【新耐震基準】 |
| 設備
|
|
| エレベーター | 1基 |
営業マンの一言 人気エリア・デザイナーズビル大阪メトロ御堂筋線 心斎橋駅徒歩5分 大阪メトロ四ツ橋線 四ツ橋駅徒歩利用可能 南船場エリアのデザイナーズSOHOビル |
|

※取引態様:仲介
※上記、金額は募集条件です。 条件交渉など、詳細についてはお問合せ下さい。
※広告作成中に契約済みの場合はご容赦下さい。
※図面等現況が相違する場合は現況優先にてご容赦下さい。
心斎橋 店舗の所在地周辺
同じビルの その他の部屋情報
物件を再検索する
心斎橋 店舗 関連物件
心斎橋 店舗 近隣のよく似た坪数の貸事務所
-
KUS博労町ビル
大阪市中央区博労町4
御堂筋線「心斎橋」徒歩3分
26.3坪 -
永恒ビル
大阪市中央区心斎橋筋1
御堂筋線「心斎橋」徒歩1分
26.85坪 -
サンダー心斎橋ビル
大阪市中央区西心斎橋1
御堂筋線「心斎橋」徒歩1分
25.64坪 -
三栄心斎橋ビル
大阪市中央区西心斎橋1
御堂筋線「心斎橋」徒歩2分
26.0坪 -
御堂筋ミナミビル
大阪市中央区西心斎橋2
御堂筋線「心斎橋」徒歩5分
26.06坪 -
プレヴュービル
大阪市中央区西心斎橋2
御堂筋線「心斎橋」徒歩5分
25.78坪 -
心斎橋エルナ岩崎ビル
大阪市中央区東心斎橋1
御堂筋線「心斎橋」徒歩2分
29.89坪 -
科野ビル
大阪市中央区南船場3
御堂筋線「心斎橋」徒歩3分
27.66坪 -
NLC心斎橋ビル
大阪市中央区南船場3
御堂筋線「心斎橋」徒歩4分
28.67坪 -
三栄ムアビル
大阪市中央区南船場3
御堂筋線「心斎橋」徒歩3分
26.04坪























