AXIS瓦町ビル(アクシス瓦町ビル) 5階-No.25143
丹羽 美智子ニワミチコ
AXIS瓦町ビル(アクシス瓦町ビル)の豆知識
「AXIS第一フジビル」は、大阪市中央区瓦町2丁目にございます、賃貸事務所・テナントビル。
堺筋沿いに位置する8階建て。
貸室面積が約20坪のワンフロア貸しと、小ぶりながら大通りに面した、視認性の高い建物です。
大阪市営地下鉄・堺筋線・中央線の「堺筋本町駅」徒歩3分。
「北浜駅」や「本町駅」も徒歩圏内と、フットワークの良いビジネス拠点です。
商都・大阪のかつてのメインストリートであった“堺筋”。
今なお商業・経済の中心地として、多くの企業の本・支店がオフィスを構えるエリアであり、銀行・カフェ・レストラン・コンビニエンスストアなど、オフィス街の需要に応える施設も充実しています。
AXIS瓦町ビル(アクシス瓦町ビル) その他の貸室情報
| 階 | 号室 | 坪数 | ㎡数 | 賃料 | 共益費 | 保証金 | |
|---|---|---|---|---|---|---|---|
| 1階 | 9.98坪 | 33.00㎡ | 300,000 円 | 3,000 円 | 5ヶ月 | ![]() |
|
| 3階 | フロア | 17.7坪 | 58.52㎡ | 149,300 円 | 25,000 円 | 3ヶ月 | ![]() |
AXIS瓦町ビル(アクシス瓦町ビル) 基本情報
| 種別 | 事務所(物件番号:25143) |
|---|---|
| 物件名 | AXIS瓦町ビル(アクシス瓦町ビル)
ワンフロア賃貸オフィス、業種ご相談下さい |
| 住所 | 大阪市中央区瓦町2-2-12 |
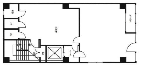
| 所在階 | 5階部分フロア号室 |
| 契約面積 | 17.7 坪・ 58.52 ㎡ |
| 最寄駅 |
堺筋線 『
堺筋本町 』
3 分
堺筋線 『 北浜 』 4 分 中央線 『 本町 』 3 分 |
| 構造 | S(鉄骨)造 8階建 |
| 築年数 | 1977/10 |
| 設備
|
|
| エレベーター | 1基 |
営業マンの一言 堺筋に面す。2016年リニューアル済堺筋本町エリアのワンフロア貸しオフィス! |
|

※取引態様:仲介
※上記、金額は募集条件です。 条件交渉など、詳細についてはお問合せ下さい。
※広告作成中に契約済みの場合はご容赦下さい。
※図面等現況が相違する場合は現況優先にてご容赦下さい。
AXIS瓦町ビル(アクシス瓦町ビル)の所在地周辺
物件を再検索する
AXIS瓦町ビル(アクシス瓦町ビル) 関連物件
AXIS瓦町ビル(アクシス瓦町ビル) 近隣のよく似た坪数の貸事務所
-
本町ビル
大阪市中央区安土町1
堺筋線「堺筋本町」徒歩4分
18.0坪 -
プロパレス安土町ビル
大阪市中央区安土町1
堺筋線「堺筋本町」徒歩2分
16.94坪 -
グランドメゾン船場
大阪市中央区安土町1
堺筋線「堺筋本町」徒歩3分
18.66坪 -
日宝淡路町ビル
大阪市中央区淡路町1
堺筋線「堺筋本町」徒歩7分
16.23坪 -
I.S.O(アイ・エス・オービル)
大阪市中央区淡路町2
堺筋線「堺筋本町」徒歩6分
17.08坪 -
第3エーシービル
大阪市中央区淡路町2
堺筋線「堺筋本町」徒歩8分
15.83坪 -
瓦町ダイワビル(旧:がんすい)
大阪市中央区瓦町2
堺筋線「堺筋本町」徒歩2分
19.05坪 -
いずみやビル
大阪市中央区瓦町2
堺筋線「堺筋本町」徒歩4分
15.7坪 -
堺筋本町プラザビル
大阪市中央区北久宝寺町1
堺筋線「堺筋本町」徒歩4分
19.95坪 -
SD船場ビル
大阪市中央区北久宝寺町2
堺筋線「堺筋本町」徒歩3分
19.0坪


















