タツト靭公園ビル 2階-No.39381
中阪 浩之ナカサカ ヒロユキ
タツト靭公園ビルの豆知識
「タツト靱公園ビル」は、大阪市西区京町堀1丁目にございます賃貸事務所。
靱公園(東園)北側に面した、コンパクトな9階建て。
外壁の“白”と公園の“緑”とのコントラストが美しく、小ぶりながら視認性の高いオフィスビルです。
貸室は30坪弱のワンフロア貸しが基本ですが、分割フロアもございますので、お問い合わせください。
使いやすい広さと文句なしの眺望が、効率良いオフィスワークをサポートすること間違いなし。
人気の大阪ビジネス拠点です。
大阪市営地下鉄四つ橋線の「肥後橋駅」または「本町駅」より徒歩7分の交通アクセスです。
タツト靭公園ビル 基本情報
| 種別 | 貸事務所(物件番号:39381) |
|---|---|
| 物件名 | タツト靭公園ビル |
| 住所 | 大阪市西区京町堀1-14-24 |
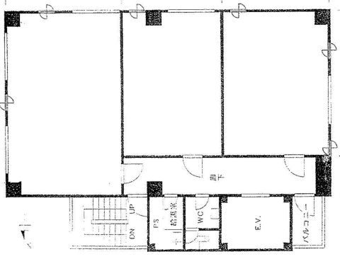
| 所在階 | 2階部分1号室 |
| 契約面積 | 8.38 坪・ 27.71 ㎡ |
| 最寄駅 |
四ツ橋線 『
肥後橋 』
7 分
四ツ橋線 『 本町 』 7 分 |
| 構造 | S(鉄骨)造 9階建 |
| 築年数 | 1983/5 |
| 設備
|
|
| エレベーター | 1基 |
営業マンの一言 靱公園に隣接した緑あふれるオフィス!人気エリア靱公園に面した賃貸事務所ビル!初期費用も安くお勧めです。 |
|

※取引態様:仲介
※上記、金額は募集条件です。 条件交渉など、詳細についてはお問合せ下さい。
※広告作成中に契約済みの場合はご容赦下さい。
※図面等現況が相違する場合は現況優先にてご容赦下さい。
タツト靭公園ビルの所在地周辺
物件を再検索する
タツト靭公園ビル 関連物件
タツト靭公園ビル 近隣のよく似た坪数の貸事務所
-
日宝肥後橋中央ビル
大阪市西区江戸堀1
四ツ橋線「肥後橋」徒歩1分
7.0坪 -
サンライズ肥後橋ビル
大阪市西区江戸堀1
四ツ橋線「肥後橋」徒歩1分
7.38坪 -
肥後橋双葉ビル
大阪市西区江戸堀1
四ツ橋線「肥後橋」徒歩1分
7.5坪 -
タマリスビル
大阪市西区江戸堀1
四ツ橋線「肥後橋」徒歩3分
8.0坪 -
NAGASAKI 長崎ビル
大阪市西区江戸堀1
四ツ橋線「肥後橋」徒歩2分
6.8坪 -
肥後橋建和ビル
大阪市西区江戸堀1
四ツ橋線「肥後橋」徒歩3分
5.8坪 -
グラン・ビルド江戸堀ビル
大阪市西区江戸堀1
四ツ橋線「肥後橋」徒歩4分
7.0坪 -
西八千代ビル
大阪市西区江戸堀1
四ツ橋線「肥後橋」徒歩3分
6.39坪 -
京町橋八千代ビル
大阪市西区京町堀1
四ツ橋線「肥後橋」徒歩3分
8.99坪 -
福岡ビル
大阪市西区京町堀1
四ツ橋線「肥後橋」徒歩3分
9.37坪





















