堂島ビルヂング 1階-No.44120
堀中 忠久ホリナカ タダヒサ
堂島ビルヂングの豆知識
「堂島ビルヂング」は、大阪市北区西天満2丁目にございます、賃貸オフィスビル。
大正12年築の近代建築。
1960年と1999年の大規模な改修により、外観は大きくリニューアルされていますが、一歩中に入ると当時をしのばせる造りが随所にみられる歴史的建築物。
御堂筋沿い、大川・大江橋の北側に位置する、地下1階・地上9階建て。
堂々たる構えは、まさしく“シンボリックビル”。
ビルスペックは、より快適なオフィススペース提供の為、改修を重ねており、テナント様のビジネスワークを強力にサポートしており安心。
市営地下鉄・御堂筋線の「淀屋橋駅」から徒歩5分の交通アクセス。
各線の「梅田駅」エリアへも徒歩圏内と、フットワークの良いビジネス拠点です。
基準階面積は550坪超ございますが、約15坪~500坪まで、豊富な広さの貸室がございます。
また、眺望の良し悪しや、形状等もお部屋によって違いがありますので、是非一度ご内覧いただきたいビルです。
堂島ビルヂング その他の貸室情報
堂島ビルヂング 基本情報
| 種別 | 貸事務所(物件番号:44120) |
|---|---|
| 物件名 | 堂島ビルヂング |
| 住所 | 大阪市北区西天満2-6-8 |
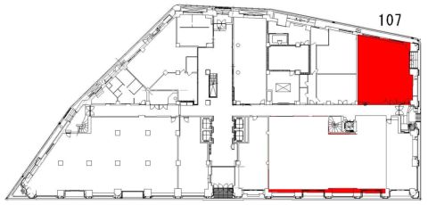
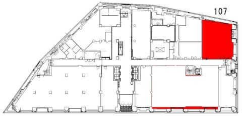
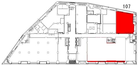
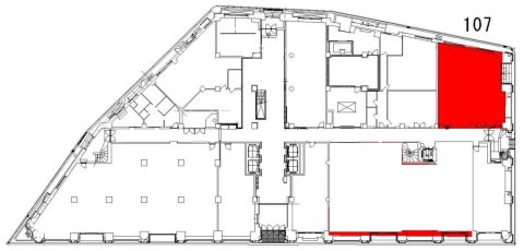
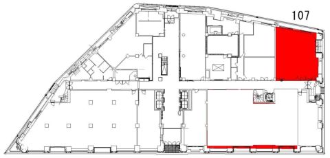
| 所在階 | 1階部分7号室 |
| 契約面積 | 44.55 坪・ 147.28 ㎡ |
| 最寄駅 |
御堂筋線 『
淀屋橋 』
5 分
御堂筋線 『 梅田 』 10 分 四ツ橋線 『 西梅田 』 12 分 |
| 構造 | 鉄筋コンクリート造 9階建 /地下 1 階 |
| 築年数 | 1923/7 (リニューアル: 済 ) |
| 設備
|
|
| エレベーター | 5基 |
営業マンの一言 御堂筋に面した大型オフィスビル。大阪メトロ御堂筋線 淀屋橋駅徒歩5分 京阪線・四ツ橋線徒歩利用可能 大正12年の近代建築を象徴した賃貸テナント事務所ビル。内部空間は大正ロマンが色濃く、ぜひ御覧いただきたいビルです。 |
|
| 備考 | レトロ(築古)/貸し会議室/リフレッシュルーム |

※取引態様:仲介
※上記、金額は募集条件です。 条件交渉など、詳細についてはお問合せ下さい。
※広告作成中に契約済みの場合はご容赦下さい。
※図面等現況が相違する場合は現況優先にてご容赦下さい。
堂島ビルヂングの所在地周辺
入居テナント
物件を再検索する
堂島ビルヂング 関連物件
堂島ビルヂング 近隣のよく似た坪数の貸事務所
-
大阪三井物産ビル
大阪市北区中之島2
御堂筋線「淀屋橋」徒歩6分
47.98坪 -
PMO EX淀屋橋
大阪市中央区淡路町2
御堂筋線「淀屋橋」徒歩6分
40.99坪 -
京阪神淀屋橋ビル
大阪市中央区今橋4
御堂筋線「淀屋橋」徒歩2分
46.79坪 -
淀屋橋竹村ビル
大阪市中央区今橋4
御堂筋線「淀屋橋」徒歩2分
41.19坪 -
HK今橋ビル
大阪市中央区今橋4
御堂筋線「淀屋橋」徒歩2分
48.48坪 -
国元高麗橋ビル
大阪市中央区高麗橋3
御堂筋線「淀屋橋」徒歩2分
43.91坪 -
大阪朝日生命館
大阪市中央区高麗橋4
御堂筋線「淀屋橋」徒歩1分
46.62坪 -
高麗橋ウエストビル
大阪市中央区高麗橋4
御堂筋線「淀屋橋」徒歩3分
48.83坪 -
BizMiix淀屋橋(ビズミックス淀屋橋)
大阪市中央区平野町3
御堂筋線「淀屋橋」徒歩3分
40.26坪 -
大明ビル(タイメイ)
大阪市中央区平野町4
御堂筋線「淀屋橋」徒歩5分
43.49坪























