銀泉備後町ビル 14階-No.53830
 中阪 浩之
中阪 浩之ナカサカ ヒロユキ
銀泉備後町ビルの豆知識
「銀泉備後町ビル」は、大阪市中央区瓦町3丁目にある御堂筋に面した賃貸事務所ビルです。
地下鉄御堂筋線「本町駅」から徒歩3分、「淀屋橋駅」から徒歩5分、まさに大阪ビジネス街の中心に位置するスタイリッシュな外観の建物。
エントランスは、吹き抜けと待ち合わせスペースのゆとりの空間がひろがっています。
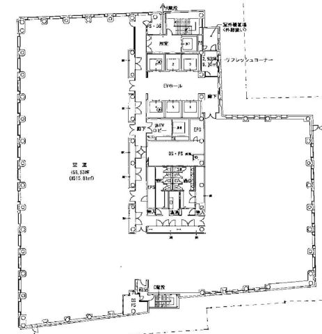
貸室内は、OAフロア完備で2.8mの天井の高さがあり、広さもワンフロア約450坪。もちろん、約130坪ほどの区画割もでき、フレキシブルなオフィスが可能です。
足元まであるガラス窓が一層のゆとりと明るい採光をもたらしています。
ビル設備面としましては、エレベーター6基+人荷用2基、機械警備、シャワートイレ、各階リフレッシュルーム、地下には喫煙スペースもございます。
空調はもちろん個別空調なのですが、“床吹出方式”のビル用マルチエアコンといって、大阪でも5~6棟位にしかみられないものだそうです。通常吹き出し口は、天井もしくは室内上部にあるものを、OA床下に空調をとおして床に吹き出し口があるタイプです。
銀泉備後町ビル 基本情報
| 種別 | 貸事務所(物件番号:53830) | 
|---|---|
| 物件名 | 銀泉備後町ビル | 
| 住所 | 大阪市中央区瓦町3-6-5 | 
| 所在階 | 14階部分分割案号室 その他、貸室 | 
| 契約面積 | 104.55 坪・ 345.62 ㎡ | 
| 賃料 | お電話・メールにてお問合下さい。 | 
| 共益費 | お電話・メールにてお問合下さい。 | 
| 月額合計 | お電話・メールにてお問合下さい。 | 
| 敷金 | お電話・メールにてお問合下さい。 | 
|  | |
| 最寄駅 | 御堂筋線                  『
                  本町                  』
                  2                  分 中央線 『 本町 』 4 分 御堂筋線 『 淀屋橋 』 5 分 | 
| 構造 | 鉄骨造 14階建 /地下 3 階 | 
| 築年数 | 2003/1 【新耐震基準】 | 
| 設備 | |
| エレベーター | 8基 | 
| 営業マンの一言大阪メトロ御堂筋線 本町駅徒歩2分 淀屋橋駅・肥後橋駅も徒歩利用可能 御堂筋沿いの立地、設備&フォルム、ステイタスを誇れるハイグレード賃貸テナントオフィスビル。 | |
| 備考 | リフレッシュルーム | 

※取引態様:仲介
            ※上記、金額は募集条件です。 条件交渉など、詳細についてはお問合せ下さい。
            ※広告作成中に契約済みの場合はご容赦下さい。
            ※図面等現況が相違する場合は現況優先にてご容赦下さい。
銀泉備後町ビルの所在地周辺
銀泉備後町ビル その他の部屋情報
入居テナント
物件を再検索する
銀泉備後町ビル 近隣のよく似た坪数の貸事務所
- 
                    本町サンケイビル大阪市中央区本町4 
 御堂筋線「本町」徒歩2分
 138.28坪
- 
                    淡路町ダイビル大阪市中央区淡路町3 
 御堂筋線「本町」徒歩5分
 130.4坪
- 
                    瓦町スクエアビル大阪市中央区瓦町2 
 御堂筋線「本町」徒歩6分
 102.61坪
- 
                    おおきにKOKODESU瓦町四丁目大阪市中央区瓦町4 
 御堂筋線「本町」徒歩4分
 128.46坪
- 
                    船場ミッドキューブ(SENBA MID CUBE)大阪市中央区北久宝寺町3 
 御堂筋線「本町」徒歩4分
 106.42坪
- 
                    五味ビル大阪市中央区久太郎町2 
 御堂筋線「本町」徒歩4分
 136.86坪
- 
                    船場グランドビル大阪市中央区久太郎町3 
 御堂筋線「本町」徒歩1分
 107.0坪
- 
                    又一ビルディング大阪市中央区久太郎町3 
 御堂筋線「本町」徒歩1分
 134.71坪
- 
                    谷口悦第2ビル大阪市中央区久太郎町3 
 御堂筋線「本町」徒歩1分
 110.11坪
- 
                    EDGE備後町大阪市中央区備後町3 
 御堂筋線「本町」徒歩2分
 113.1坪

 お問合せリスト・物件リクエスト
 お問合せリスト・物件リクエスト 電話でお問合せ
 電話でお問合せ



 
                  
                


 
                                   









































