肥後橋官報ビル

中阪 浩之ナカサカ ヒロユキ
「肥後橋官報ビル」は、大阪市西区江戸堀1丁目にございます賃貸事務所。
四ツ橋筋沿い、肥後橋南交差点の北東角地に位置し、陶壁レリーフのある10階建てオフィスビル。
壁面を彩る、彫刻家・三上友也氏によるレリーフには、生命に対する永遠の賛歌が刻みこまれています。
大阪市営地下鉄四つ橋線の「肥後橋駅」出入り口スグ。
御堂筋線の「淀屋橋駅」へも、徒歩5分の好アクセスです。
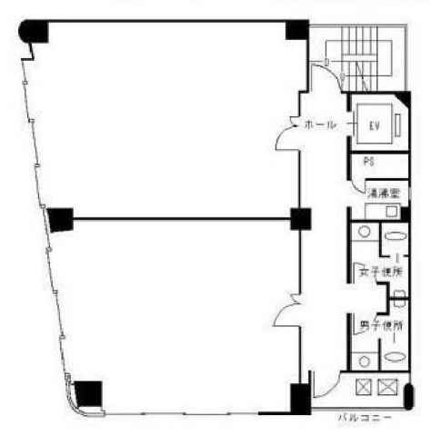
貸室基準階面積は約45坪あり、採光の良い快適なオフィススペースを確保。
2分割した約20坪前後のオフィスプランもございますので、お問い合わせください。
肥後橋官報ビル 貸室情報
| 種別 | 貸事務所 |
|---|---|
| 物件名 | 肥後橋官報ビル |
| 住所 | 大阪市西区江戸堀1-2-14 |
| 最寄駅 | 四ツ橋線 『
肥後橋 』
1 分
御堂筋線 『 淀屋橋 』 5 分 |
| 構造 | 鉄筋コンクリート造 10階建 |
| 築年数 | 1987/1 【新耐震基準】 |
| 設備
|
|
営業マンの一言 肥後橋駅出入り口スグの好アクセス貸事務所大通りに面した角ビルグレードの良いオフィスです。立地も良く淀屋橋駅にも5分と便利です。 |
|

※取引態様:仲介
※上記、金額は募集条件です。 条件交渉など、詳細についてはお問合せ下さい。
※広告作成中に契約済みの場合はご容赦下さい。
※図面等現況が相違する場合は現況優先にてご容赦下さい。
肥後橋官報ビルの所在地周辺
物件を再検索する
近隣のよく似た坪数の貸事務所
-
肥後橋レックスビル
大阪市西区江戸堀1
四ツ橋線「肥後橋」徒歩1分
34.23坪 -
太陽ビル
大阪市西区江戸堀1
四ツ橋線「肥後橋」徒歩1分
30.21坪 -
肥後橋渡辺ビル
大阪市西区江戸堀1
四ツ橋線「肥後橋」徒歩1分
30.56坪 -
アール肥後橋ビル
大阪市西区江戸堀1
四ツ橋線「肥後橋」徒歩1分
30.63坪 -
肥後橋センタービル
大阪市西区江戸堀1
四ツ橋線「肥後橋」徒歩1分
34.2坪 -
肥後橋ニッタイビル
大阪市西区江戸堀1
四ツ橋線「肥後橋」徒歩1分
31.17坪 -
昭和ビルディング(江戸堀)
大阪市西区江戸堀1
四ツ橋線「肥後橋」徒歩3分
35.93坪 -
肥後橋エフビル(旧:肥後橋延三)
大阪市西区江戸堀1
四ツ橋線「肥後橋」徒歩1分
31.13坪 -
肥後橋IPビル
大阪市西区江戸堀1
四ツ橋線「肥後橋」徒歩2分
31.46坪 -
肥後橋イシカワビル
大阪市西区江戸堀1
四ツ橋線「肥後橋」徒歩4分
32.4坪






























